Список архитекторов ... »

 

Архитектор Юрий Бабич. Архитектор Бабич Юрий Иванович

Проектная организация: ТАМ "Бабич"
Отправить  e-mail 


Творческая архитектурная мастерская ТАМ “Бабич”

Творческая архитектурная мастерская “Бабич”- динамический коллектив, работающий в разных направлениях проектирования - индивидуальные и многоэтажные жилые дома, промышленные объекты, комплексы отдыха, кафе, торговые комплексы, культовые, и другие общественные сооружения. В составе мастерской также существуют секции ландшафтного проектирования и дизайна интерьеров.

В творческой мастерской под руководством архитектора Юрия Бабича работают опытные, высококвалифицированные специалисты, молодые архитекторы и инженеры. Ведущие архитекторы являются членами Национального союза архитекторов Украины.

Архитектор Юрий Иванович Бабич родился 2 февраля 1957 года в городе Збараж Тернопольской обл. В 1981 г. закончил архитектурный факультет Киевского инженерно-строительного института.

Член Национального союза архитекторов Украины. Лауреат Государственной премии Украины в области архитектуры 2007 г. за архитектуру храмового комплекса с ландшафтным парком в с. Буки Сквирского района Киевской области. Неоднократный лауреат Всеукраинских конкурсов на лучшее архитектурное произведение (1997, 2001, 2003, 2004, 2005). Лауреат первой премии конкурса “Стиль. Безупречность. Красота”.

Творческий коллектив:

Дизайнер Александр Жарко.
Архитектор Василий Омельяненко.
Архитектор Юрий Рейтерович.

Дизайнер
Жарко Александр Анатольевич
- заслуженный художник Украины, член НСХУ, лауреат архитектурных конкурсов НСАУ.

Архитектор
Омельяненко Василий Николаевич- лауреат архитектурных конкурсов НСАУ, член НСАУ.

Архитектор
Рейтерович Юрий Григорьевич
- лауреат Государственной премии Украины в области архитектуры 2007 г ., член НСАУ.



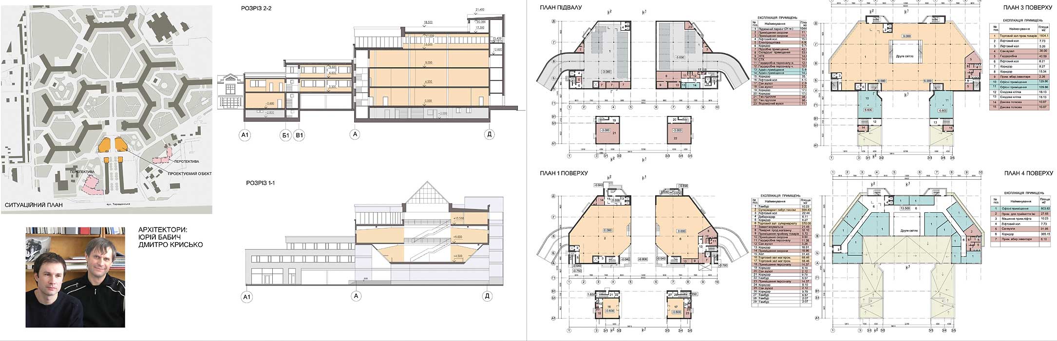
Проект оргово-офисный центра «Вавилон». Город Белая Церковь.

Архитектор Юрий Бабич. Проект торгово-офисного центра «Вавилон». Генплан.


Архитектор Юрий Бабич. Проект торгово-офисного центра «Вавилон».
Архитектор Юрий Бабич. Проект торгово-офисного центра «Вавилон».
Архитектор Юрий Бабич. Проект торгово-офисного центра «Вавилон».
Генеральный план.
Ситуационный план.
Архитектор Юрий Бабич.
Проект торгово-офисного
центра «Вавилон».

Архитектор Юрий Бабич.
Проект торгово-офисного
центра «Вавилон».
Архитектор Юрий Бабич.
Проект торгово-офисного
центра «Вавилон».
Генеральный план.
Ситуационный план.