Список архитекторов ... »

ПРИЙМАК ВЛАДИМИР ВАСИЛЬЕВИЧ

Проектная организация: ТАМ "АРХ-ДИЗАЙН БЮРО"    www.adb.kiev.ua
Отправить письмо
e-mail

Архитектор Владимир Приймак.
Архитектор Владимир Приймак.

Архитектор Владимир Васильевич Приймак – кандидат архитектуры, член Союза архитекторов с 1980 года, член Правления Киевской городской организации Национального союза архитекторов Украины (НСАУ), член градостроительного совета Главкиевархитектуры. Свидетельство НСАУ на самостоятельную творческую деятельность получил в 1995 году.

Архитектор Владимир Приймак родился в 1955 г., в 1977 окончил архитектурный факультет Львовского политехнического института (теперь Национальный университет Львов-ская политехника). Профессиональную деятельность начал в Винницком филиале Гипрогражданпромст-рой в 1977 году.

С 1979 по 1996 годы учился в аспирантуре и работал в КиевЗНИИЭП, начиная с должности младшего до ведущего научного сотрудника. Последняя занимаемая должность - заведующий сектором общественных центров. В 1985 году архитектор Владимир Приймак успешно защитил кандидатскую диссертацию по специальности 18.00.02-Архитектура зданий и сооружений. Тема диссертации - “Архитектура общественных центров регионального значения на примере крупнейших городов Украины”.

В 1985 г. получил диплом кандидата архитектуры ВАК при СМ СССР. В тот период - автор ряда научных работ, публикаций и проектов, в том числе:

- гостиничный комплекс Андреевский по ул. Воздвиженской, 60 (реализация - 1994 г.);
- 17-этажный жилой дом с супермаркетом по ул. Соломенской, 16-б (реализация -1992 г.);
- научно-проектных обоснований для строительства общественных центров городов Украины.

С 1986 г. по настоящее время архитектор Владимир Приймак – доцент кафедры основ архитектуры КНУБА (по совместительству).


Архитектор Владимир Приймак.
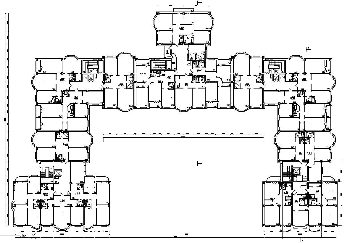
Жилой комплекс по ул. Волошской, 50/38 в Киеве.


Архитектор Владимир Приймак. Жилой комплекс по ул. Волошской, 50/38 в Киеве.