Список архитекторов ... »
Архитектор Максим Третяк. Архитектор Третяк Максим Эдуардович

Проектная организация: Проектно – строительная компания «ЗЕНАКО»

www.zenako.com.ua
      Отправить e-mail

Архитектор Третяк Максим Эдуардович родился 1968 г. В 1993 г. закончил архитектурный факультет Киевского инженерно-строительного института. До 2003 года работал в России. Член Союза архитекторов РФ.

Принимал участие в разработке Генеральных планов городов Новый Уренгой, Салехард, комплексной схемы развития территории Тюменской области (в составе коллектива НИИП Градостроительства г. Санкт-Петербург). Основные реализованные проекты: спортивная школа олимпийского резерва, Центр национальных культур, здание администрации, жилой комплекс г. Салехард (Россия).

С 2003 года работал в институте Генерального плана г. Киева. Автор «Схемы строительства паркингов и гаражей в г. Киеве на период до 2010 г.», ПДП Шевченковского района г. Киева ( районы Сырец, Волейкив, Бабий Яр).

С 2007 года руководит архитектурно - планировочной мастерской «Зенако». На данное время архитектурно - планировочной мастерской «Зенако» запроектированы и сроятся – жилые дома по ул. Малиновского, ул. В. Стуса, административное здание по ул. Туполева, жилые дома в г.г. Нежин, Остер, Козелец Черниговской обл. Проектируются жилые комплексы по ул. Львовской, ул. Половецкой в г. Киеве. Разработана концепция застройки квартала по ул. О. Телиги, Щусева, Грекова.

Авторский коллектив:

- архитектор Козлова Юлия Сергеевна;
- архитектор Черныш Юлия Васильевна.


Архитектор Максим Третяк.
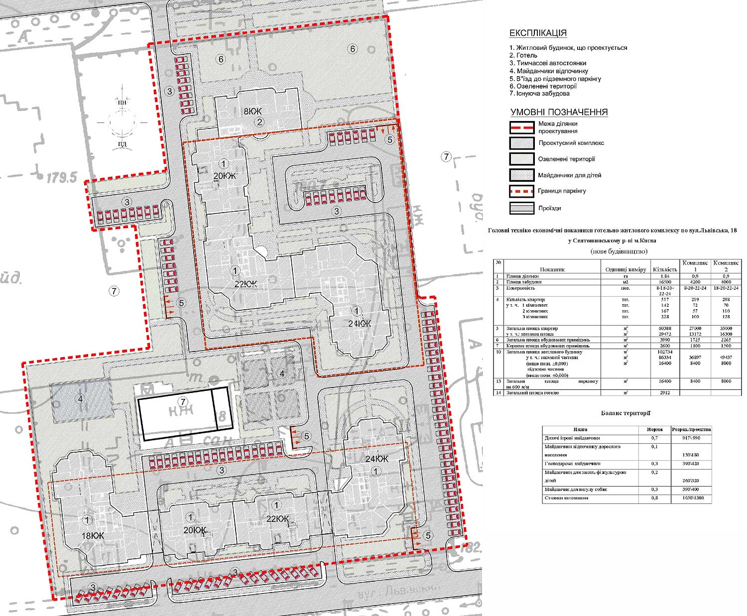
Жилищно-отельный комплекс по ул.Львовская 18 в городе Киеве.

Архитектор Максим Третяк. Жилищно-отельный  комплекс  по ул.Львовская 18 в городе Киеве.