Список архитекторов

ВАСИЛЬЕВ ДМИТРИЙ ВИКТОРОВИЧ

ПОПОВ АЛЕКСАНДР ВАДИМОВИЧ

Проектная группа "АРХИМАТИКА"
Отправить письмо
e-mail

 

Архитектор Дмитрий Васильев.
Архитектор Васильев
Дмитрий Викторович.

 

 

Архитектор Васильев Дмитрий Викторович родился 25 марта 1978 года.

В 2003 году закончил архитектурный факультет Киевского университета строительства и архитектуры.

2004 год – главный архитектор фирмы «Design centre», город Дубай, ОАЭ.

2005 год – один из учредителей проектной группы «Архиматика».

 
Архитектор Александр Попов.
Архитектор Попов
Александр Вадимович.

 

 

Архитектор Попов Александр Вадимович родился 5 мая 1975 года.

В 1999 году закончил архитектурный факультет Киевского университета архитектуры и строительства.

С 1999 по 2003 работал в проектно-строительной компании «FORMIX», архитектором.

С 2003 по 2005 частная практика в области архитектуры и дизайна.

Проектная группа «АРХИМАТИКА» - высокопрофессиональная, молодая, динамично развивающаяся проектная команда, созданная в 2005 году группой архитекторов накопивших к этому времени большой опыт работы, как в Украине, так и за рубежом. Сфера деятельности – весь комплекс архитектурного и строительного проектирования от проектов застройки кварталов до отдельных монофункциональных комплексов.


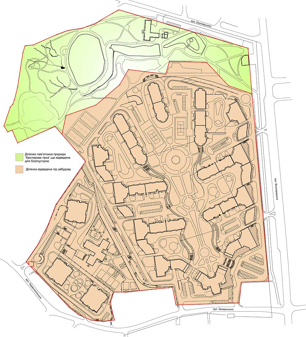
Жилой комплекс с паркингами, общественными объектами и благоустройством парка
«Кристерова горка» на улице Вышгородская 45 в городе Киеве. Проект застройки.











       

Целевое назначение
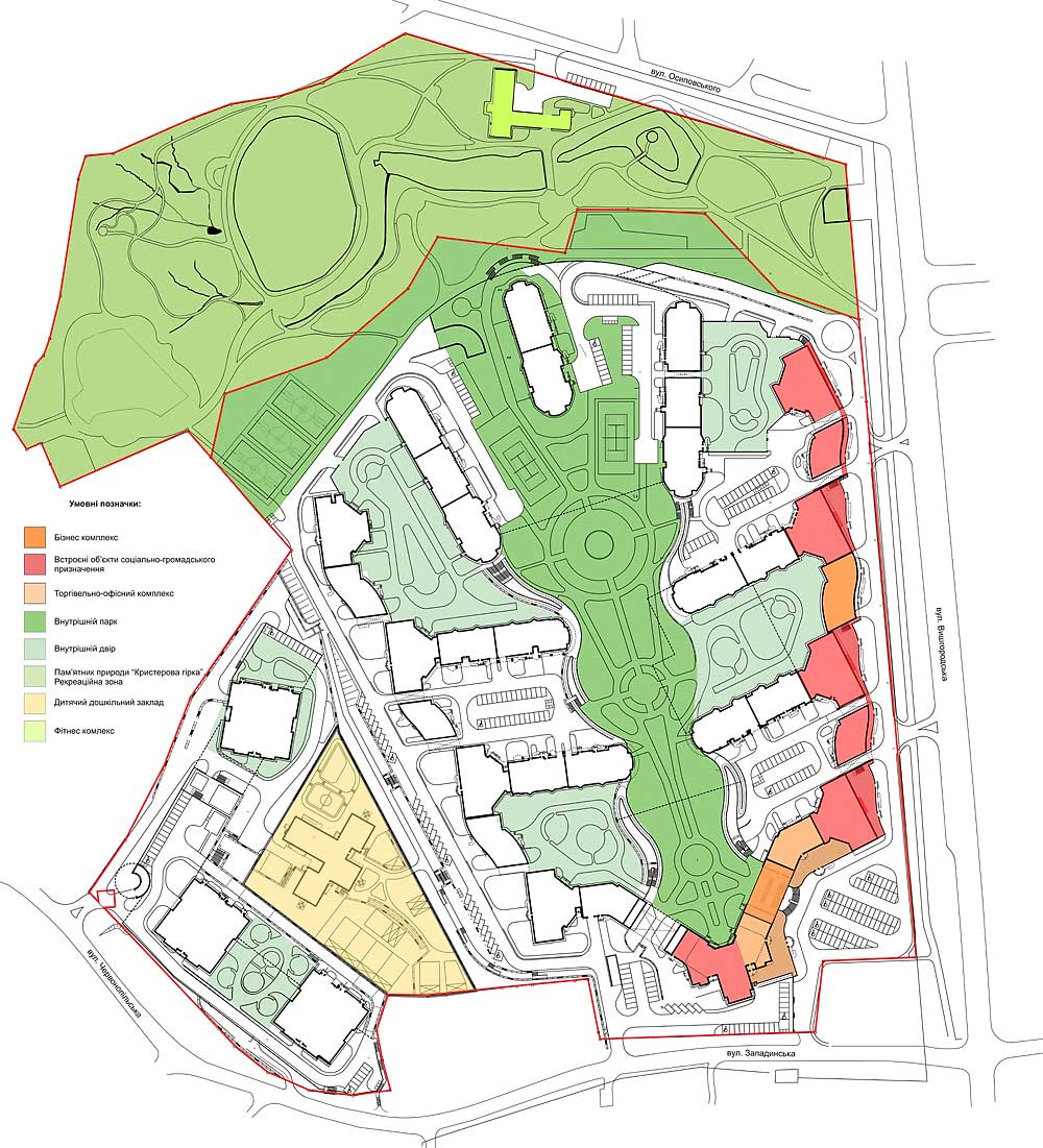
Многофункциональный охраняемый жилищно-административный комплекс, имеющий всю необходимую для комфортабельного проживания инфраструктуру, гармонично дополненный коммерческими и офисными площадями, паркингом, объектами для занятий спортом и отдыха.

Месторасположение
Земельный участок расположен в северной части города Киева в Подольском районе, на пересечение двух транспортных артерий городского значения — проспекта Правды и улицы Вышгородской. Участок имеет плавный, живописный ландшафт, его северо-западная сторона покрыта множеством красивых, пышных деревьев, среди которых спряталась целая система лесных прудов и соединяющих их каналов. Это — заповедный парк, памятник природы «Кристерова Гирка», созданный в XIX веке, который по замыслу авторов концепции, трансформируется в зону отдыха для жителей и гостей комплекса

Архитектурная концепция
Место расположение участка является наиболее благоприятным для создания здесь жилищного комплекса с полной социальной инфраструктурой. Живописный ландшафт с его плавными перепадами, органические формы лесных прудов и каналов, мягкие линии извилистых парковых тропинок — все это послужило вдохновением при создании планировочной концепции проекта. Новый жилищный комплекс прекрасно просматривается с главной дороги. Он плавно открывается взору входной группой и прилегающей к ней площадью, которые мягко встречают и приглашают к себе пешеходный поток благодаря размещенным здесь террасам, магазинам, кафе и ресторанам. Прилегающие к домам территории благоустраиваются с обязательным применением ландшафтного дизайна и представляют собой уютные уголки для отдыха и релаксации на свежем воздухе. На территории комплекса, рядом с заповедным парком, будут размещены школа и детский сад. Территория же самого заповедного парка благоустраивается, регенерируется, и на ней размещаются рекреационные элементы проекта — теннисные корты, спортивные площадки и т.д. Уникальная природа участка и его выгодное месторасположение в комплексе с оригинальной архитектурно-планировочной концепцией создадут прекрасный многофункциональный комплекс в столице Украины.

Паспорт объекта

Общая площадь участка
17,28 га

Территория памятника природы «Кристеровая горка»
4,3 га

Общая площадь проектируемых зданий
421 780 м 2

Общая площадь объектов социально-общественного назначения
11 000 м 2

Количество квартир
3 125

Архитектурно-градостроительный совет Киева одобрил концептуальный проект строительства жилищного комплекса с объектами социально-общественного назначения, паркингами, и благоустройство памятника природы «Кристерова горка» по ул. Вышгородской, 45 в Подольском районе Киева. Такое решение было принято сегодня на заседании Градосовета. Проект строительства комплекса разработан ООО «Архиматика» по заказу ОАО «Агрофирма троянда».

Как сообщил главный архитектор проекта Дмитрий Васильев, земельный участок площадью 17,28 га расположен на территории второго микрорайона Ветряные горы. Он состоит из 12 га, предназначенных для жилищной застройки, и 4,3 га ландшафтного парка с ценными породами деревьев. На территории участка сейчас находится полуразрушенное тепличное хозяйство.

Проект предусматривает строительство жилищного комплекса с 5-23-этажными домами, объектами социально-общественного назначения, площадками для отдыха детей и взрослых, спортивными площадками, паркингом на 3 125 машин и строительство детского сада на 175 мест. Также планируется реконструировать ландшафтно-парковую зону «Кристерова горка». Общая площадь квартир составляет 250 тыс. м2. Из 3 125 квартир планируется, что 30% составят однокомнатные, 40% — двухкомнатные, 25% — трехкомнатные и 5% четырехкомнатные квартиры.

Проектировщики сделали акцент на создании комфортных условий для проживания, отведя 3 га на территории жилищной застройки под озеленение, создание площади с фонтаном, строительство спортивных площадок. В жилищном комплексе общей площадью 420 м2 . предусматривается секционная жилая застройка и стилобатная часть между домами. На кровле стилобата разместят детские и спортивные площадки. В центре комплекса планируется строить дома до 10 этажей, а высотные здания расположить на периферии. В домах предусмотрены террасные секции с их дальнейшим благоустройством и озеленением.

По периметру комплекса проектировщики предусмотрели кольцевую транспортную схему с тремя въездами. Социально-общественные объекты расположатся вдоль ул. Вышгородской. Главный архитектор Киева Василий Присяжнюк похвалил идею архитекторов проекта по сохранению ландшафта и благоустройству Кристеровой горки. Он рекомендовал одобрить проект для дальнейшей разработки проектной документации, разработать проект застройки в полном объеме, согласовать эксплуатацию объектов социально-общественного назначения с райадминистрацией.