Список архитекторов



Проектная организация: ООО "Проектные системы ЛТД".

Творческий руководитель - архитектор Миргородский Сергей Николаевич.

Отправить e-mail

Архитектор Сергей Миргородский.

Архитектор Миргородский Сергей Николаевич - творческий руководитель архитектурной мастерской "Проектные системы ЛТД". В 1959 году закончил Московский архитектурный институт. 10 лет руководил крупным (250 сотрудников) архитектурным бюро КиевЗНИИЭП. Около 10 лет был руководителем Главного управления Украины по градостроительству и архитектуре. С 1988 года – руководитель частных архитектурных фирм.

Автор проектов:

- здания Театра оперы и балета в Харькове;
- гостиниц Интурист в Киеве, Харькове, Одессе, Черновцах.

Сергей Миргородский - победитель десятков архитектурных конкурсов, в результате которых построены здания и монументы.

В их числе:

- монумент Дружбы народов в Киеве;
- монумент в честь “Слова о Полку Игореве” в Путивле;
- монумент Героям революции 1905 года в Горловке;
- монумент Героической обороне Аджимушкаяв в Керчи;
- монумент Героям феодосийского десанта в Феодосии.

 


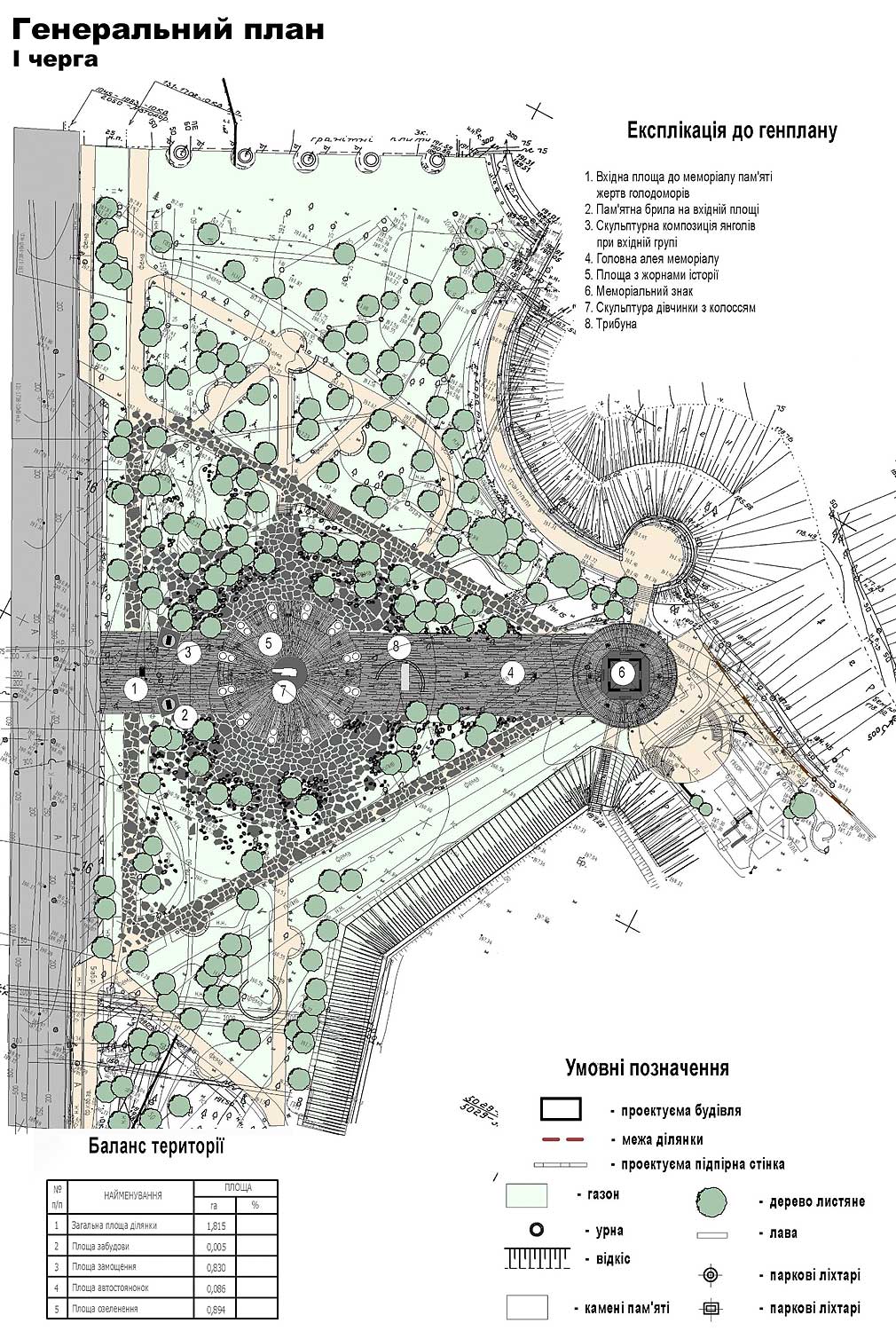
Проект Мемориального комплекса памяти жертвам голодоморов в Украине
по адресу улица Январского восстания, 15-а в городе Киеве.








 
       
Главный архитектор проекта – Ковалев Юрий Петрович