Заседание градостроительного совета Киевглавархитектуры 6 апреля 2005 года.
Схема планирования территории микрорайона „Жуляны” в Соломенском районе.
Проектная организация: ГО „Центр градостроительства и архитектуры”.
Заказчик: Соломенская районная в г. Киеве государственная администрация.
Главный архитектор проекта: Н. Войко.
Выявление новых участков – основная задача работы. Площадь рассматриваемой территории 504 га. Это - в основном усадебная застройка (Генплан предусматривает сохранение индивидуальной застройки) и промышленные объекты. 85 % территории находится в подтопленном состоянии из-за высокого уровня грунтовых вод и плохого состояния инженерных сетей. Была определена экологическая ситуация и выявлены санитарные зоны: 300 метров существующего кладбища, 500 метров свалки и т. п. В зоне шумового дискомфорта от аэропорта «Жуляны» с уровнем выше 85 децибел застройка запрещена, а уровень от 80 до 85 допускает строительство со специальными противошумовыми мероприятиями. Новые участки могут быть получены и за счёт совхоза «Совки», и ряда промышленных предприятий.
|
|
|
Транспортная схема. |
Опорный план микрорайона Жуляны. |
Схема сети пассажирского
транспорта. |
|
|
|
Схема сети улиц и дорог. |
Схема размещения микрорайона
Жуляны в системе города Киева. |
Фрагмент генерального плана Киева. |
Вдоль реки Нивка предусмотрена рекреационная зона, а на месте сельсовета медицинский и социальный центр. Сделаны предложения по организации транспортных схем и канализационной системы с перспективой постройки коллектора. Решить проблему подтопления можно понижением на 1,5 метра русла реки. Ведущий Совет В.Присяжнюк предложил одобрить этот первый этап работы и рекомендовал авторам продолжить разработку детального плана территории.
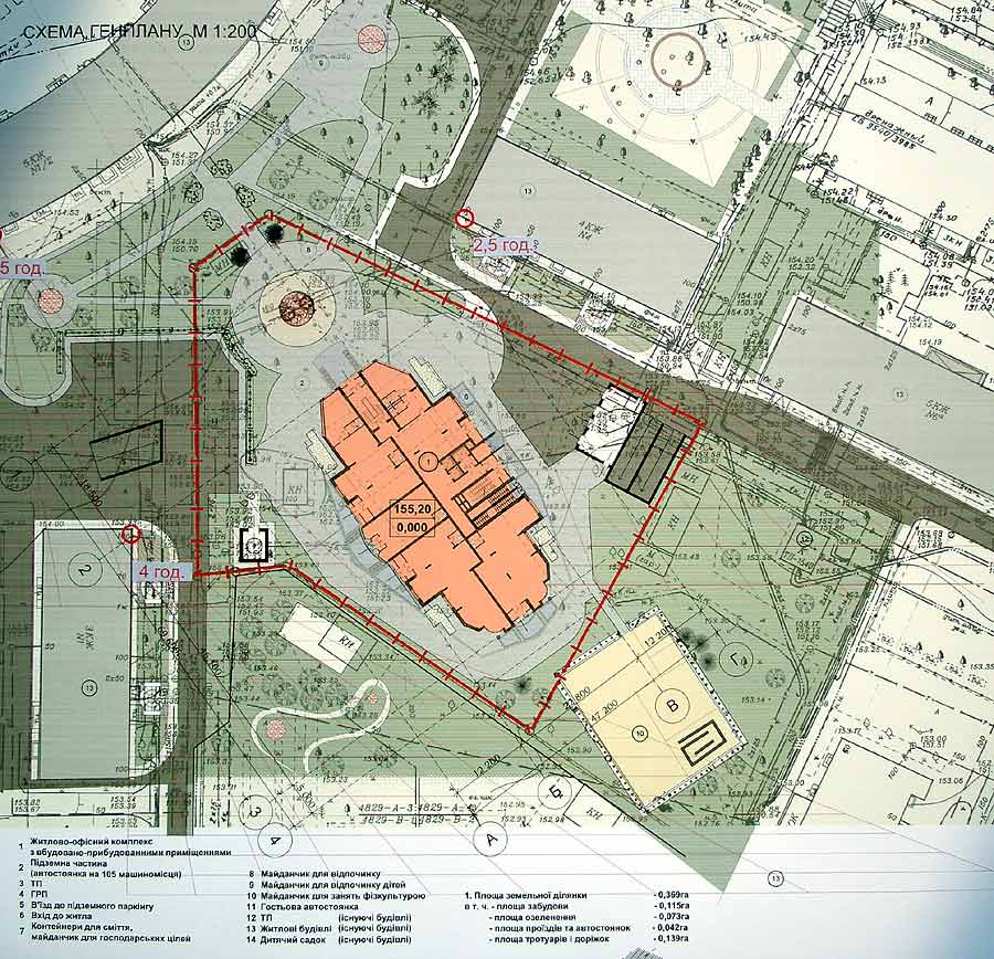
Проект строительства жилого-офисного комплекса с встроенно-пристроенными помещениями по адресу: улица Киквидзе, 1-б.
Проектная организация: Институт современного строительства.
Заказчик : ООО „Авангардстрой”.
Главный архитектор проекта: С. Касянович.
Участок (площадь застройки 0,166 га, озеленения - 0,066 га, проездов и автостоянок – 0,033 га, тротуаров и дорожек – 0, 128 га) находится в центре города, в квартале, сформировавшемся в основном в 1950-е – 1960-е годы. Низкая этажность определила и низкую плотность – всего 150 человек на 1 га. Здание комплекса, спроектировано авторами в середине квартала как акцентное. 9-этажные крылья по бокам центрального, сужающегося кверху объёма в 25 этажей (первый – офисный, остальные 24 – жилые) осуществляют визуальный переход к окружающим «хрущёвкам». Предложение архитекторов: надстроить соседние трёхэтажные здания до 8 -9 этажей.
|
|
|
|
Проект жилого офисного комплекса. |
Проект жилого офисного комплекса. |
Макет жилого офисного комплекса. |
Схема благоустройства квартала.
|
|
|
|
|
Фасады здания в осях. |
Проект жилого офисного комплекса.
Фотомонтаж. |
План типового этажа. |
Схема генерального плана. |
Ведущий Совет В. Присяжнюк обратил внимание авторов, что в АПЗ чётко прописана задача: разработать эскизный проект комплексной реконструкции квартала и обсудить его с местными жителями. И вначале следует выполнить это условие - обследовать состояние всего квартала, выяснить, что сносить и что реконструировать. Предложено: комплексным застройщиком выступить администрации района. Рекомендовано: выделить площадку под строительство жилья для отселения жителей идущих под снос домов и затем рассмотреть проекты конкретных зданий и в первую очередь - этого, по Киквидзе, 1-б.
Предпроектные предложения строительства жилого здания с подземным паркингом по адресу: улица Комбинатная, 25, Днепровский район.
Проектная организация: Творческая архитектурная мастерская „Н. Дёмин”.
Заказчик: ООО „Спецстройресурс”.
Главный архитектор проекта: Н. Дёмин.
|
|
|
|
Схема организации движения транспорта. |
Предпроектные предложения
по строительству жилого дома. |
Фотомонтаж. |
Генеральный план. |
|
|
|
|
Размещение участка в
системе застройки. |
План типового этажа. |
Общий вид здания. |
Карта Киева. |
Семь секций. Этажность от 9 до 22 этажей. Общее количество квартир 560. Подземный паркинг на 569 мест. Территория частично подсыпается. По Генплану это территория многоэтажной застройки. Ведущий Совет В. Присяжнюк рекомендовал одобрить предложения и продолжить работу с учётом обеспечения нормативных расстояний от существующей застройки и организации дворового пространства.
Проект детального планирования территории района посёлка Троещина в Деснянском районе.
Проектная организация: ГП „Институт Киевгенплан”.
Заказчик: Деснянская районная в г. Киеве государственная администрация.
Главный архитектор проекта: Н. Жук.
 |
Общий вид микрорайона с высотных зданий. |
 |
Генеральный план микрорайона. |
Проектная территория, ограниченная окончанием проспекта Ватутина, улицами Овруцкой, Оноре де Бальзака, заливом реки Десёнка, занимает земли бывшего села Выгуровщина. Село во время войны сгорело, и сохранилась послевоенная усадебная застройка с участками в 40 – 50 соток. Также здесь расположены санитарные зоны водозаборов, базы отдыха. Ведётся строительство ожогового центра, для которого требуется вертолётная площадка и коридор ы для полётов. В проекте определено функциональное разделение территории. Для отдыха жителей массива Троещина (350 тысяч человек) предлагается создать парк (2 части общей площадью 200 га), эффективно используя участки вдоль водоёмов. Для защиты территории от затоплений будет построена дамба высотой 6 метров, которая будет служить и магистралью.Ведущий Совет В. Присяжнюк предложил работу принципиально одобрить и вынести на рассмотрение Киевсовета для утверждения. Следует провести общественное обсуждение проекта. Необходимо разработать режим будущего использования территории и транспортные схемы. Также рекомендовано предусмотреть участки для владельцев дач идущих под снос на Русановских садах в связи со строительством мостового перехода.
Проект строительства шахматного клуба по адресу: улица Михаила Грушевского, 3.
Проектная организация: ООО „Красная шапочка”.
Заказчик: ООО „Каданс Компани”.
Главный архитектор проекта: Н. Писковская.
|
|
|
План этажа здания. |
План этажа здания. |
Общий вид здания.
|
|
|
|
Общий вид здания. |
Общий вид здания. |
Архитектурный макет.
|
 |
Генеральный план. |
Главный архитектор проекта Н. Писковская пояснила свой выбор стиля здания месторасположением объекта - рядом с Мариинским дворцом Мариинского дворца. А обилие декора рассчитано на то, что прогуливающиеся в парке будут любоваться постройкой с близкого расстояния. Проект согласован с Министерством культуры и искусств и Управлением охраны памятников. Рецензент проекта С. Лапоногов согласен с идеей строительства клуба в парке, но не в архитектуре давно прошедших времён. К тому же в документах разрешается строительство павильона, то есть строения с облегчённым фундаментом, а предложено фундаментальное здание с рестораном, конференц-залом и зоной активного отдыха. Ведущий Совет В. Присяжнюк рекомендовал авторам проектировать в соответствии с документацией – сделать павильон шахматного клуба, и подумать над вариантом с организацией территории в рамках реконструкции парка. |