Заседание градостроительного совета Киевглавархитектуры 13 апреля 2005 года.
Консультативное рассмотрение проекта строительства жилого здания с встроенно-пристроенными нежилыми помещениями социально-бытового назначения по адресу: улица Урицкого, 14-в.
Проектная организация: ГО „Центр градостроительства и архитектуры”.
Заказчик: ГО „Центр градостроительства и архитектуры”.
Главный архитектор проекта: С. Казарянц.
 |
Схема генерального плана. |
Автор проекта доложил членам Совета, что и анализ ситуации участка прилегающего к улицам Урицкого и Островского, и консультация с С. Юнаковым - автором концепции застройки этой территории, показали возможность размещения здесь подобного объекта. Генплан это пятно предусматривает под жилищную функцию. Предполагается строить комплекс из двух высоток: первый этап – свеча из 2 нижних нежилых и 20 жилых этажей на стилобатной платформе в которой находится паркинг, в перспективе – 30-этажное здание. Существующие на площадке дома - жилые 4-х и 5-и этажные и нежилой 3-х этажный будут поэтапно расселять. Для переселенцев построят пилотный дом на свободном месте. Но члены Совета с этой перспективой не согласились. А. Карминский: У Юнакова были предусмотрены пропилеи – приглашающая архитектурная композиция и жилья там не предполагалось, а здесь от них ничего не осталось. Отсутствует социально ориентированное пространство для нормальной жизни. Очень сомнительная идеология проектирования комплекса. Да и отведено пока только 19 соток. Мы не имеем права строить этот один дом. Н. Жариков: Сам дом хороший, но здесь его строить во вред городу. И доминанты здесь не нужны.
|
|
|
Проект жилого дома. |
Проект жилого дома. |
Поэтажный план жилого дома.
|
|
|
|
Проект жилого дома. Фотомонтаж. |
Проект жилого дома. |
Архитектурный макет. |
В. Присяжнюк: Предлагаем доработать проект, учитывая замечания Совета, как гостинично-офисный объект, возможно с небольшим количеством жилья на верхних этажах.
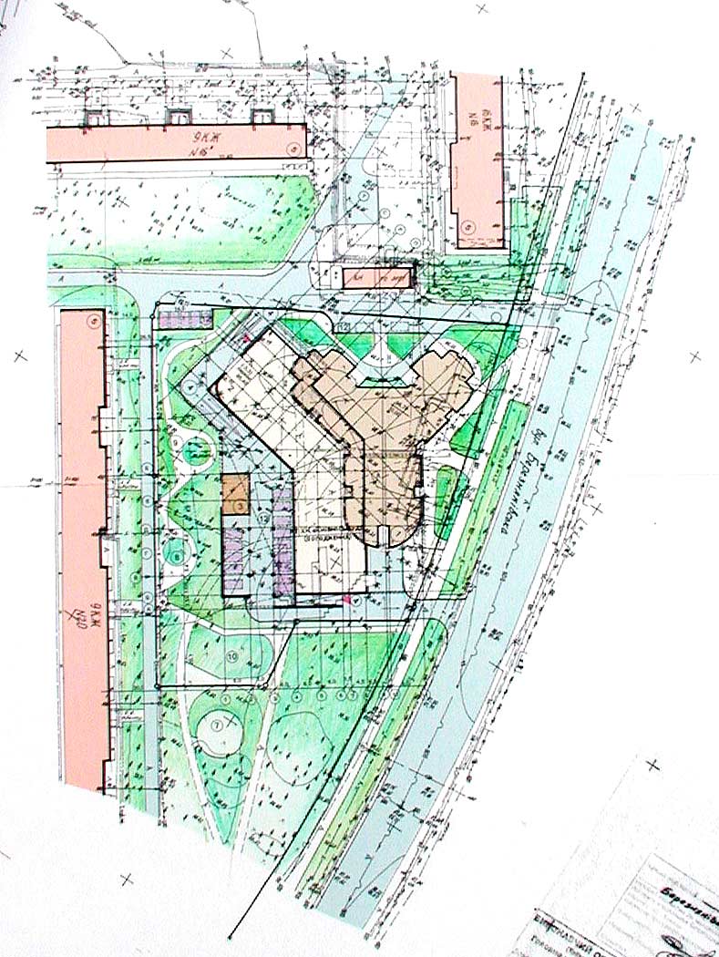
Проект строительства жилых зданий с помещениями социально-бытового назначения и подземной автостоянкой по адресу: улица Ломоносова, 73-79.
Проектная организация: ТАМ „В. Шевченко”.
Заказчик : ООО „Фирма „ТММ”.
Главный архитектор проекта: В. Шевченко.
Новый комплекс на 1100 квартир комфортного жилья среднего класса, должен органично вписаться в существующую ситуацию университетского городка. Эта часть территории практически пустая со спокойным рельефом, на ней частично сформирован зелёный бульвар, который авторы намерены сохранить. Уже существующая пешеходная эспланада будет продлена до будущей станции метро. Транспортный подъезд предусмотрен по улице С. Ковальской. А паркинг на 1180 мест запроектирован под стилобатной частью. Внутридворовое пространство защищено от западных ветров. Предусмотрена большая рекреационная площадь – с зеленью, фонтанами и солнечными часами. Вокруг неё магазины, фастфуды и объекты бытового обслуживания. В этой зоне влияния аэропорта Жуляны разрешается высота до18 этажей, но максимальная этажность использована лишь дважды. Основная высотность каскадной композиции – 9 – 15 этажей. С. Целовальник обратил внимание на то, что в университетский городок вклинивается коммерческое жильё, а сам по себе проект хороший. А. Брыль тоже считает: необходимо доказать, что жилой комплекс не противоречит развитию Университета. Представительница Университета заверила Совет, что жилой комплекс был запланирован ещё в 1979 году и сейчас одновременно с жильём идёт подготовка к строительству лабораторных и учебных корпусов, а также реконструкции спортивного комплекса.
|
|
|
|
Схема застройки участка. |
Проект строительства жилых
зданий. Фотомонтаж. |
Развёртка фасадов зданий. |
План кровли. |
|
|
|
|
Проект строительства жилых зданий.
Фотомонтаж. |
Схема застройки участка. |
Градостроительный макет. |
Проект строительства жилых
зданий. Фотомонтаж. |
В. Присяжнюк: Действительно жильё здесь предусмотрено, нужны и торговый комплекс и объекты бытового обслуживания. Предлагаю одновременно со строительством квартала предусмотреть полную реконструкцию детсада и подумать о входе с улицы Ломоносова. Прошу внести в протокол, что мы рекомендуем ознакомить с проектом студенческий парламент Университета.
Проект строительства жилого здания по адресу: улица Березняковская, 16 -20, Днепровский район.
Проектная организация: КП ПТАМ „А. Донец”.
Заказчик: АТ ХК „Киевгорстрой”.
Главный архитектор проекта: А. Донец.
Творческая архитектурная мастерская «Донец». |
 |
Архитектор Донец Александр Сергеевич. Член Национального союза архитекторов Украины, творческий руководитель архитектурной ПТАМ «Донец» ... »
|
|
|
|
|
Генеральный план. |
План типового этажа здания. |
Макет жилого здания. |
Схема размещения. |
 |
Проект жилого здания. Фотомонтаж. |
На свободном от застройки участке площадью 0,72 га. будет построен каркасно-монолитный 21-этажный дом на 154 квартиры. Ёмкость трёхуровневого (два уровня подземных) паркинга - 158 машиномест. Общая площадь магазинов 1720 кв. м. Есть спортивные и детские площадки. Сохранены существующие деревья. Е. Лишанский: Это здание будет видно с железной дороги всем въезжающим в Киев. Хорошо бы предусмотреть наверху грамотную рекламу и таким образом оживить дом. В. Присяжнюк: Откажитесь от пристроенных помещений, для максимального сохранения территории сделайте магазины в границах здания. Проведите общественное обсуждение проектного предложения. Следует провести противошумовые мероприятия и предусмотреть ремонт фасада здания по улице Березняковская, 20. Согласовано с учётом этих условий.
Проект реконструкции с расширением здания бывшего детского садика № 174 под жилой дом по адресу: улица А. Бестужева, 34, Подольский район.
Проектная организация: ООО „Киевавиапроект”.
Заказчик: ГП „Завод „Генератор”.
Главный архитектор проекта: Н. Полищук.
|
|
|
|
Фасад в осях. |
Проект жилых зданий. |
Карта Киева. |
План первого этажа.
|
 |
Проект жилых зданий. |
В здании бывшего детсада спланированы двухкомнатные квартиры, а в новом здании однокомнатные. С точки зрения представителя завода „Генератор” полученные в результате осуществления проекта 96 квартир дадут возможность заводу привлечь молодых инженеров – выпускников КПИ и оживить производство. Но члены Совета не согласились с архитектурой и планировкой проекта. Л. Скорик: Социальное жильё тоже должно быть гармоничным. Е. Лишанский: Надо проверить есть ли экономический смысл сохранять коробку садика. Серьёзный рассчёт покажет ущербность этого решения. В. Шевченко: Снос садика даст возможность увеличить количество жилья за те же деньги. В. Присяжнюк: Надо провести новое проектирование на этом месте и подготовить нормальное решение.
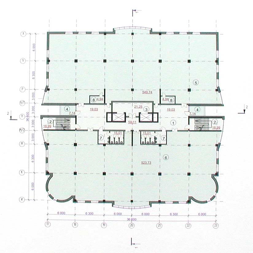
Комплекс жилых зданий с объектами обслуживания населения на участке № 41 в 7-м микрорайоне жилого массива «Позняки» в г. Киеве. Корректировка проекта. Блок обслуживания населения.
|
|
|
|
Схема генерального плана. |
Общий вид комплекса. |
Общий вид комплекса. |
Макет комплекса.
|
|
|
|
|
План пятого этажа. |
План этажа. |
План первого этажа. |
План второго этажа. |
 |
Фасад в осях. |
В настоящее время три трёхсекционные 27 –этажные жилые здания построены и сданы в эксплуатацию. По указанию районной администрации осуществлена корректировка проекта. И вниманию Совета предлагается дополнительно вписанный в структуру сложившейся застройки пятиэтажный блок о бщей площадью 6839 кв.м . В нём для обслуживания населения этих зданий планируется разместить аптеку, банк, продуктовые и промышленные магазины, танцевальный и компьютерный клубы. А. Карминский: Архитектор не показал планировку. Такое нельзя допускать на Совет. Е. Лишанский: Сначала надо сделать технологические схемы, понять технологические взаимосвязи, пересечения потоков. В. Присяжнюк: Мы подтверждаем возможность размещения блока, но необходимо подготовить и показать Совету детально проработанные планы с учётом технологических особенностей объектов. |