Заседание градостроительного совета Киевглавархитектуры 15 июня 2005 года.
Предпроектные предложения строительства учебных корпусов Киевского национального университета строительства и архитектуры по адресу: проспект Воздухофлотский , 31-б, Соломен ский район.
Проектная организация: ООО « СК „Горстройинвест ».
Заказчик: ООО « Строительная компания „Горстройинвест ».
Главный архитектор проекта : Т. Доценко.
"Творческая архитектурная мастерская ДОЦЕНКО" |
 |
Архитектурное проектирование жилых, общественных зданий, объектов многофункционального назначеня ... »
Архитектор Татьяна Доценко и архитектор Игорь Петров |
|
Архитектор Т. Доценко предлагает симметрично поставить по сторонам существующего основного здания (которое будет отремонтировано) два новых 16-этажных учебных корпуса, создав просматривающиеся с Воздухофлотского проспекта пропилеи. По второму этажу пройдёт объединяющая галерея. Строительство осуществляется в две очереди.
Площадь застройки одного корпуса 2007,0 кв.м.; общая площадь одного учебного корпуса 10510,3 кв. м.; площадь учебных помещений одного корпуса 3254,57 кв. м.; площадь помещений научно-исследовательского отделения 3061, 02 кв. м.; площадь отраслевой выставки 474,37 кв. м. Высота этажа 3, 5 м. Со 2-го по 8-й этаж разместятся аудитории, 9-й займёт административная часть. Этажи с 10 по 13 займёт научно-исследовательский институт. Он завершит учебный цикл, предоставляя студентам возможность получения навыков практической работы. Расчёт плотности территории соответствует нормативам, но есть проблема нехватки парковочных мест.
|
|
|
|
Проект учебного корпуса. |
Проект учебного корпуса. |
Схема генерального плана. |
Этажный план.
|
|
|
|
|
План первого этажа. |
Проект учебного корпуса. |
Этажный план. |
Фасад учебного корпуса. |
А. Карминский: Следует ещё поработать над планировочными решениями. Настораживает то, что с 10 по 16 этажи занимает институт, не имеющий отношения к учебному процессу.
В. Ежов: Я бы скверик не трогал. Надо делать не два здания, а точку на свободной территории.
А. Цветков: Чтобы понять градостроительную ситуацию, необходим макет. А моё мнение, что два объёма, подчёркнутые симметрией, здесь быть не должно. И плпнировки не правильные.
Н. Жариков: Я бы оставил один дом, никаких пропилеев не надо. И сквер нужно сохранить. Этот проект можно принять за основу.
А. Миргородский: Симметричное решение придаёт статус. Следует проанализировать ситуацию, показать резерв территории, провести функциональное зонирование и решить этот вопрос.
В. Шевченко: Нужен расчёт перспективы развития института.
В. Присяжнюк: Понятно желание академии расширяться и мы за такую возможность. Надо для определения пространственной градостроительной ситуации сделать макет. Необходимо обсудить предложение в самом учебном заведении. После проведения технико-экономических рассчётов по возможностям территории и анализа перспективы развития учебного заведения мы сможем вернуться к рассмотрению этого вопроса.
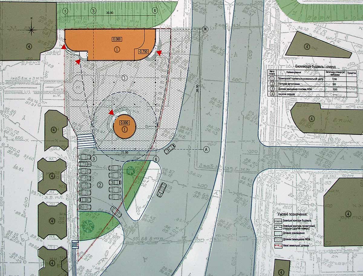
Предпроектные предложения размещения торгово-развлекательного центра с предприятиями общественного питания в районе станции метро «Левобережная» по адресу: улица Расковой, Днепров ский район.
Заказчик: ООО «СНС».
Главный архитектор проекта : А. Чупрак.
Для упорядочения территории предлагается построить торгово-развлекательный центр павильонного типа из лёгких металлических конструкций в три этажа. На верхнем этаже разместится ресторанная часть, второй этаж займёт зона развлечений, а первый – торговля.
Н. Жариков: Если этот павильон считать временным, лет на 10, то он может быть. Но, чтобы не тратить деньги зря, то прежде надо увидеть всю эту площадь. Мы мечтали, чтобы она стала единым архитектурным комплексом. Нужно решить сложный вопрос транспорта. Надо заглянуть в перспективу и сделать макет. Надо делать всю площадь.
|
|
|
Проект торгово-развлекательного центра. |
Проект торгово-развлекательного центра. |
Проект торгово-развлекательного центра.
|
|
|
|
Проект торгово-развлекательного центра. |
Поэтажный план. |
Проект торгово-развлекательного центра. |
А. Карминский: Недопустимо оставлять рядом киоски. Здесь, особенно, в выходные дни, очень много автобусов. Без макета не обойтись.
В. Присяжнюк: Надо смотреть в комплексе. Предлагаю отправить на доработку.
Следует: вместе с Метрополитеном и другими заинтересованными организациями подготовить полное решение территории, согласовать с Генпланом и решить реконструкцию транспортной развязки.
Коррекция проекта строительства гостиницы высшего класса по адресу: улица Аллы Тарасовой, 5, Шевченковский район.
Проектная организация: ООО „Бюро инвестиционных проектов – проектный менеджмент” .
Заказчик: ЗАО „София Киев”.
Главный архитектор проекта : А. Волков.
Вниманию членов Совета был предложен фрагмент гостиницы со следующими технико-экономическими показателями: площадь застройки – 0,72 га; этажность подземной части – 2; общая площадь подземной части 3 405 кв. м. (в том числе подземный паркинг 2 352 кв. м., фитнес-центр 1 053 кв. м.). Количество машиномест 70. Также показано предложение по благоустройству сквера и организации подъезда к гостинице. Также материалы по этому объекту выставил архитектор Я. Виг, подчеркнувший, что его проект был утверждён в конце 2001 – начале 2002 года. Несмотря на то, что поменялись заказчик и оператор, у них новые требования, свои авторские права на гостиницу он никому не передавал. Авторская позиция и концепция неизменна – памятный знак Троицкой церкви должен стоять перед гостиницей, есть и разработанная транспортная схема.
|
|
|
|
Проект здания гостиницы. |
Проект здания гостиницы. |
Проект здания гостиницы. |
Проектное предложение №2.
|
|
|
|
|
|
Развёртка фасада. |
План подземной части гостиницы. |
Проект здания гостиницы. |
|
|
|
Движение транспортного потока (автор А.Волков). |
Проект здания гостиницы. |
Движение транспортного потока (автор Я.Виг). |
В. Присяжнюк: Сегодня мы рассматриваенм принципиальные вопросы о знаке и транспортной схеме.
А. Миргородский: Проезд Я. Вига проходит по придомовой территории и жители недовольны. Пока этот вопрос не будет решён, его вариант невозможен. Деликатный знак перед гостиницей может быть.
Э. Лещенко: Есть объект в центре города и го надо. Наконец, закончить. Оба решения не являются хорошми, и так запроектирована гостиница, что лучше транспортную схему не решить. По организации зелёных насаждений должен быть специальный раздел прописанный дендрологами.
Е. Лишанский: Паркинг ведь уже построен. Надо посмотреть есть ли альтернатива.
В. Присяжнюк: Можно рекомендовать к реализации заказчику при условии: согласовать проект с двумя авторскими коллективами для окончательного решения въезда и выезда и согласовать с ГАИ. После этого показать на секции Совета.
Проект жилого здания с офисными помещениями и подземным паркингом по адресу: улица Березняковская , 10-а, Днепровский район.
Проектная организация: ООО «Институт современного проектирования».
Заказчик: ООО „Интерпроект”.
Главный архитектор проекта : В. Касьяненко.
Площадь отведённого участка 0,65 га; общая площадь застройки 1261 кв.м.; количество этажей 21; общая площадь квартир 15790 кв.м.; количество квартир 157 (1-комнатных – 19; 2-комнатных – 59; 3-комнатных – 79); общая площадь нежилых встроенных помещений 1130 кв.м.; количество машиномест 175. Участок отведённый под проектирование находится внутри сложившегося квартала. Окружающая застройка состоит в основном из девятиэтажек с включением 16-этажных зданий и появившихся в последнее время нескольких более высоких (до 25 этажей) домов.
|
|
|
Схема генерального плана. |
План благоустройства территории. |
Фасады в осях.
|
|
|
|
Проект жилого здания. Фотомонтаж. |
План участка. |
Планы квартир. |
А. Карминский: В августе 2004 года секция градсовета предписала запроектировать функцию пристройки, а её пока нет. Надо показывать только свой проект, а на чужой территории не надо проектировать.
А. Пашенько: Планировочное решение не соответствует пожарным требованиям.
В. Присяжнюк: Думаю можно согласиться с основным решением. Рецензент Ю. Бородкин подтвердил, что нормы выдержаны и дом здесь может быть. Нужно уменьшить объём и соблюсти пожарные нормы. В первых двух этажах помимо офисов должны расположиться объекты обслуживания населения. При соблюдения этих условий можно согласовать.
Концептуальный проект реконструкции и благоустройства парка «Соломенский» в Соломенском районе.
Проектная организация: ГО «Центр градостроительства и архитектуры».
Заказчик: ГО «Центр градостроительства и архитектуры».
Главный архитектор проекта : В. Сорокин.
Цель данной работы - чётко обозначить границы парковой зоны в урочище Кучмин яр, сохранить зелёную территорию с уникальным ландшафтом и ярко выраженным рельефом.
|
|
|
Карта Киева. |
Панорама парка. |
Панорама парка.
|
|
|
|
Схема генерального плана. |
Фрагмент каскада фонтанов. |
Общий вид парка. |
А. Карминский: Конечно надо благоустроить эту территорию. Нет возражений и против детского уклона парка. Но в проекте не предусмотрены противооползневые мероприятия. Предлагаю концепцию одобрить.
А. Цветков: Это ценная рекреационная территория. В центре города попадаешь в другой мир. Место уже красивое – следует идти по пути ландшафтного парка.
В. Присяжнюк: Можем одобрить и положить в основу дальнейшей разработки. Можно согласиться с уточнением границ. Учитывая особенности этого ландшафта, поддерживаем идею ландшафтного парка. Следует сделать чёткое зонирование территории.
Проект строительства комплекса жилых зданий с встроенными помещениями по адресу: спуск Герцена , 32, Шевченков ский район.
Проектная организация: ЧП «Коматек».
Заказчик: ЗАО „Домостроительный комбинат № 1”.
Главный архитектор проекта : В. Магдысюк .
Участок расположен в районе существующей застройки, со значительным перепадом рельефа. Эта территория в соответствие с предъявленными архивными документами прилегала, но не являлась бывшим еврейским кладбищем. Запроектированы три жилых здания башенного типа высотой в 21, 25 и 21 этажей, четырёхэтажная пристройка для офисных помещений и двухэтажный детский садик на 45 мест. В стилобатной части, учитывая рельеф разместится двухуровневый паркинг на 420 мест. Основной въезд в паркинг с нижней точки спуска Герцена на двухэтажную платформу.
|
|
|
|
Проект комплекса
жилых зданий. |
План озеленения.
Дендроплан. |
Транспортно-пешеходная схема. |
Общий вид. |
|
|
|
Градостроительный макет. |
Градостроительный макет. |
Общий вид. |
Рецензент А. Пашенько: Претензия только к архитектуре верхушки зданий.
О. Лелеко: Вызывает сомнение то, что при перепаде 9 – 12 метров предлагается строго симметричная композиция, да и добавится приблизительно 1300 жителей. Может здесь хватит два 20-этажных дома с хорошей рекреационной зоной.
В. Присяжнюк: Следует изъять офисную часть из проекта и разместить здесь детский садик. Или со стороны улицы Мельникова или ещё каким-то образом организовать дополнительные подъезды. Доработать архитектуру завершений. При условии выполнений всех замечаний можно согласовать. |