Заседание градостроительного совета Киевглавархитектуры 12 октября 2005 года.
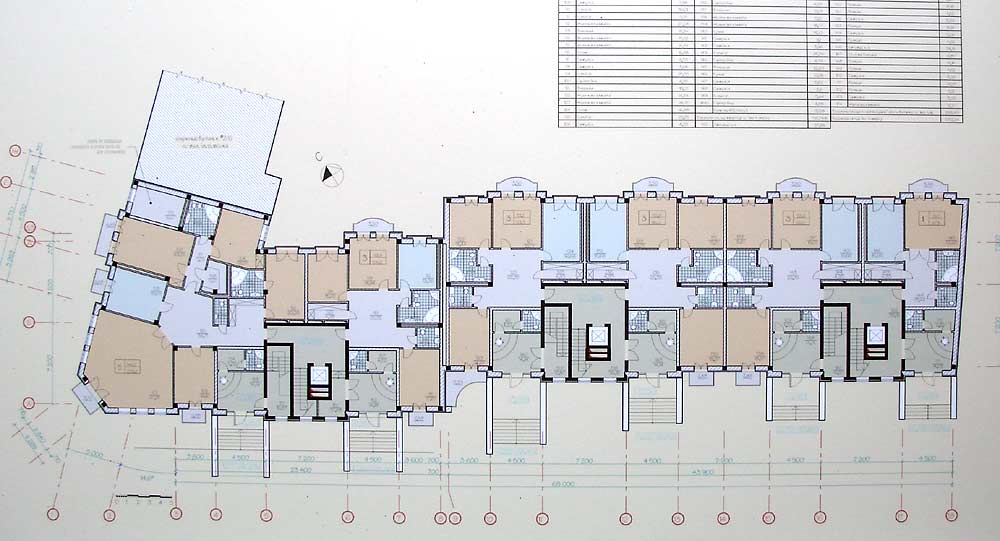
Эскиз застройки территории по улице Степана Сагайдака, 101, Днепровский район.
Проектная организация: ООО „СК „Горстройинвест”.
Заказчик: Дарницкий комбинат строительных материалов и конструкций.
Главный архитектор проекта: Татьяна Доценко.
"Творческая архитектурная мастерская ДОЦЕНКО" |
 |
Архитектурное проектирование жилых, общественных зданий, объектов многофункционального назначеня ... »
Архитектор Татьяна Доценко и архитектор Игорь Петров |
|
|
|
|
Градостроительный макет. |
Градостроительный макет. |
Градостроительный макет.
|
|
|
|
Граница отвода
змельного участка. |
Генплан. |
Общий вид. |
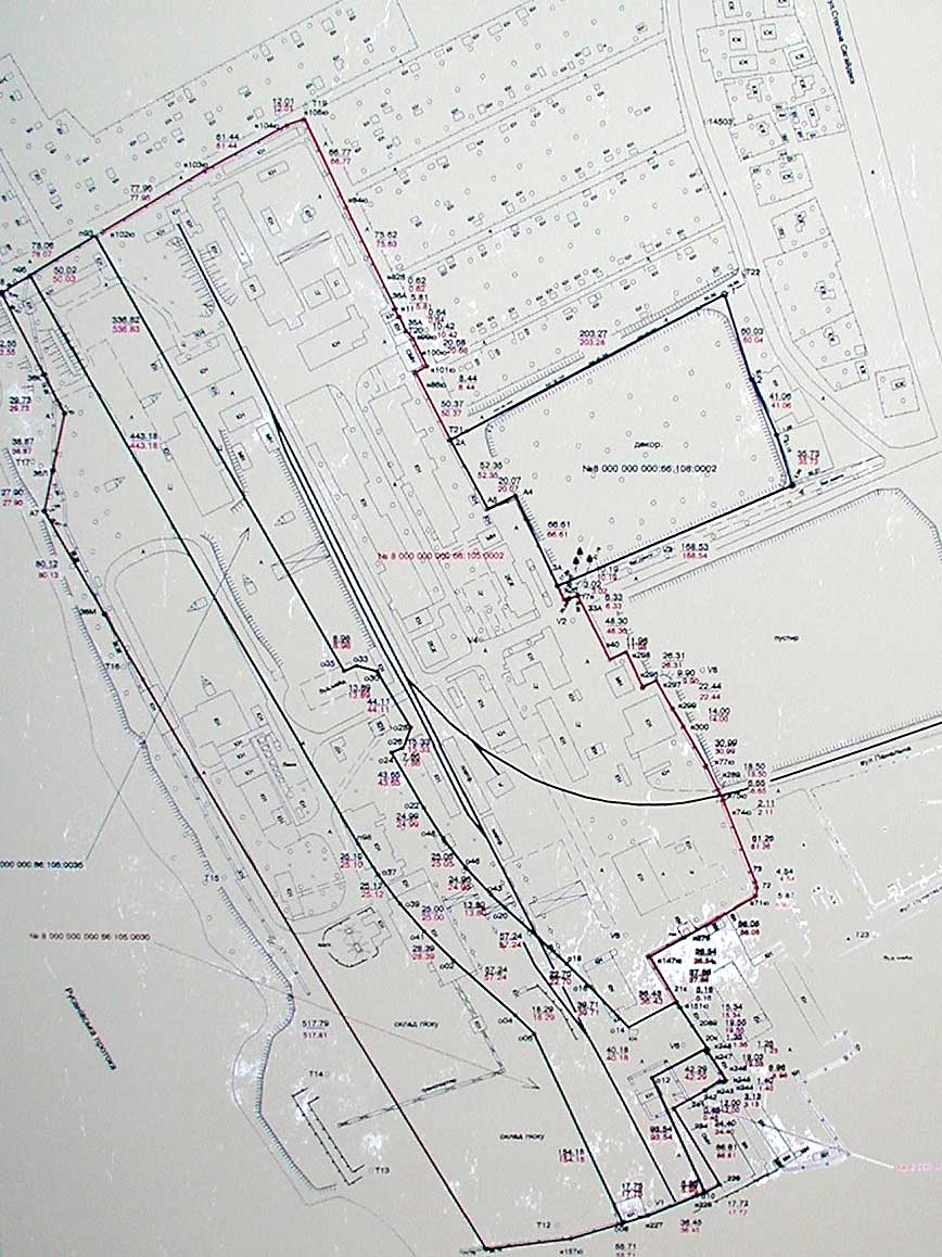
Эскиз создан на основе ДПТ, разработанного Киевпроектом. Участок площадью 21,51 га (бывший Дарницкий комбинат), ограничен Русановским заливом, Садами и высотной застройкой. Здесь авторы планируют повышение уровня до точки незатопляемости и предлагают построить жилищный комплекс с социальной инфраструктурой и торговыми точками. Предполагается строительство 11 жилых домов (высотой в 8-12-25-30 этажей) на 3500 квартир общей площадью 500 тысяч кв. м., двухуровневого подземного паркинга, необходимых по рассчётам школы на 1600 учеников и детсада на 280 мест, и в первых этажах будут размещены группы временного пребывания детей на 120 мест. Организация основного транспортного потока под землёй даст уникальную для Киева возможность слияния жилья с большой и комфортной рекреационной зоной.
В. Присяжнюк: Мы можем принципиально одобрить это предложение. Появилась новизна в подходе к застройке территории. Остаётся дискуссионным транспортный вопрос. Разработать проект дороги нужно совместно с Генпланоном и при участии инвесторов застраивающих этот и прилегающие участки.
Корректировка проекта строительства Подольского мостового перехода через реку Днепр. Предпроектные предложения Подольско-Вигуровской линии метрополитена в части прохождения трассы и размещения станций.
Проектная организация: АТЗТ «Киевсоюздорпроект»
Укрметротуннельпроект
КП «Дирекция строительства дорожно-транспортных сооружений г. Киева.
Заказчик: Дирекция строительства метрополитена.
Главные инженеры проекта: Г. Фукс, Е. Игнатович.
 |
Схема сети метрополитена. |
Новая трасса длиной 16 километров разработана в соотвествие с транспортной схемой и Генпланом. Будет построено 10 станций: станция «Вокзальная» - мелкого заложения с выходом к пригородным электричкам; «Площадь Победы» - глубокого заложения; «Глубочицкая» - тоже глубокого заложения с пересадкой на «Лукьяновскую»; «Татарка». 4 станции – эстакадные: «Подольская» (пересадочная), «Станкостроительная», «Труханов остров», «Залив Десёнка». Станция «Радужная» мелкого заложения - стыковка двух маршрутов - на Воскресенку и Троещину, следующая «Бульвар Перова». За конечной станцией «Братиславская» разместится депо.
В. Присяжнюк: Предложение принципиально одобряем. Рекомендуем провести дополнительные рассчёты по станции на Рыбальском острове в связи с проектом строительства там Сити-центра. Доработать решение с Генпланом. При строительстве депо максимально сохранить зелёные насаждения.
Консультативное рассмотрение проекта строительства жилого здания с подземным паркингом по адресу: улица Боричев Ток, № 4а, Подольский район.
Проектная организация: ООО „Крамалл Студио”.
Заказчик: Служба безопасности Украины.
Главный архитектор проекта: Святослав Александрович.
|
|
|
|
Градостроительный макет. |
Градостроительный макет. |
Градостроительный макет. |
Градостроительный макет.
|
|
|
|
|
План типового этажа. |
Схема генплана. |
Главный фасад. |
План на отметке 7.200
|
|
|
|
План подземного паркинга. |
Общий вид. |
Фасад. |
На свободном от застройки участке площадью 2649 кв. м. авторы планируют посадку 3-хсекционного дома, который, по их мнению, соответствуя стилю исторической застройки Подола и логично продолжая застройку улицы, позволит планировочно завершить квартал.
О. Лелека: Здание нерационально задумано. Ошибочно связывать исторический фасад с соседним домом 70-х годов двадцатого века. Здесь надо делать современную архитектуру меньшей этажности.
В. Вечерский: Р. Кухаренко это согласовал, но я сомневаюсь, что жильё здесь может быть комфортным – возможно лучше строить офисное здание. И хочу напомнить, что это территория заповедника «Древний Киев», а в соответствие с Меморандумом ЮНЕСКО «не допускается псевдоисторическое проектирование, так как оно противоречит как истории, так и современности». А положения Меморандума обязательны для выполнения в городах, внесённых в списки ЮНЕСКО (на Украине – это Киев и Львов).
В. Присяжнюк: На этом участке можно сделать прекрасный дом. Отправим предложение на доработку. Авторам следует учесть рельеф территории, масштаб существующей застройки, поместить объект на нормативном расстоянии от соседних зданий, снизить этажность. Согласовать новое предложение со всеми памятникоохранными органами в установленном порядке. Необходимо подготовить анализ всего квартала – вяснить, что памятник, а что подлежит сносу.
Предпроектные предложения строительства жилого здания с офисными помещениями и подземным паркингом по адресу: улица Лабораторная, 12, Печерский район.
Проектная организация: ЧП „Л. Арт”.
Заказчик: ООО «Интерпроект».
Главный архитектор проекта: Виктор Максимов.
|
|
|
|
Градостроительный макет. |
Градостроительный макет. |
Градостроительный макет. |
Градостроительный макет.
|
|
|
|
|
Поэтажный план. |
Развёртка фасада. |
Общий вид. |
Общий вид.
|
|
|
|
|
Жилой дом. |
Жилой дом. |
Участок проектирования. |
Общий вид.
|
Участок площадью 0, 1745 га находится рядом с Дворцом Украина, костёлом св. Николая и Владимирским рынком. В последние 5 лет этот район активно застраивается. Сейчас на участке находится ветхое двухэтажное здание, подлежащее сносу. Высотность нового здания – 18 этажей. Жилая часть, рассчитанная на 70 квартир, и офисная имеют раздельные входы и разделённые вертикальные комуникации, предусмотрен подземный паркинг на 78 автомобилей.
В. Присяжнюк: Необходимо сделать общую схему регенерации квартала с учётом здания архитектора С. Бабушкина; подготовить развёртки по улице Красноармейской; успокоить архитектуру здания и уменьшить его объём. |