АРХИТЕКТУРНЫЙ СОЮЗ



 
Поиск в Google  archunion.format.com.ua   www  

 ГРАДОСТРОИТЕЛЬНЫЙ СОВЕТ  
Архитекторы Киева

Заседание градостроительного совета Киевглавархитектуры 28 декабря 2005 года.



Архитектурная концепция реконструкции «Арсенала».
Автор идеи архитектор Осип Борисович Кривоглаз.

Проектом реконструкции «Арсенала» предусмотрено перекрытие внутреннего двора исторического комплекса, навесом сложной инженерной конструкции. Для осуществления этого проекта необходимо с внутренней (дворовой) стороны объекта установить опоры, которые по всей видимости должны опираться на стены существующего здания «Арсенала» или непосредственно примыкать к ним, что является недопустимым, так как таким образом будет нарушена историческая достоверность памятника архитектуры, а его стены подвергнутся нежелательной дополнительной нагрузке.

Я предлагаю: вместо дорогостоящей и сложной конструкции перекрытия, разместить во внутреннем дворе исторического комплекса, архитектурный объект, отстоящий от стен существующего объема на 12 метров и таким образом не только не затрагивающий здание «Арсенала», но и обеспечивающий свободное передвижение по периметру двора пешеходов и автотранспорта.

Предлагаемый объект, имеющий например, четыре этажа общей площадь около 30.000 кв. м., может содержать в себе 20 экспозиционных залов, с современными интерьерами. При постройке пятиэтажного варианта объекта, к этим залам добавится большой многофункциональный зал. Таким образом, площадь встраиваемого объекта безусловно, превосходит площадь предполагаемого проектом реконструкции, зала – атриума.

Тем - же самым проектом реконструкции предусматривается расположить вход в «Арсенал» со стороны торца здания. Проектантов «Укрпроектреставрации» очевидно совершенно не интересует пропускная способность входного вестибюля и схема передвижения большой массы посетителей, так как до сих пор не известен ни один из вариантов решения этого вопроса.

Существующие, при входах в историческое здание, великолепные арки ни в коем случае не следует перестраивать, достраивать, реконструировать. Их необходимо сохранить как неотъемлемую часть памятника истории и архитектуры.

Я предлагаю: построить с восточной и западной стороны существующего здания, на некотором расстоянии от него, небольшие здания – «спутники». Они могут быть как современной архитектуры так и стилизованные под историческую застройку. Функциональное их назначение – кассовые вестибюли и главные входы в «Арсенал». Проходя через эти вестибюли, посетители спускаются вниз, на первый уровень комплекса, который располагается под территорией внутреннего двора. Здесь размещаются все необходимые помещения: гардероб, туалетные комнаты и т.д. Отсюда, посетители могут свободно попасть в ныне существующее здание или в новое, предлагаемое постройкою. Таким образом, историческая часть комплекса не подвергается существенным переделкам.

Архитектурный макет.
Архитектурный макет.
Архитектурный макет.
Архитектурный макет.
Архитектурный макет.
Архитектурный макет.

Архитектурный макет.
Архитектурный макет.
Архитектурный макет.
Архитектурный макет.

Предложение архитектора О. Б. Кривоглаза всесторонне рассмотрено и обсуждено присутствующими на заседании членами Градсовета. По этому вопросу принято следующее решение – предложить архитектору И. Б. Кривоглазу продолжить работу над предложенным вариантом, а так же ознакомить со своей концептуальной идеей представителей заказчика проекта «Мистецький Арсенал».

Далее члены Градсовета перешли к рассмотрению вопросов представленных в программе заседания.

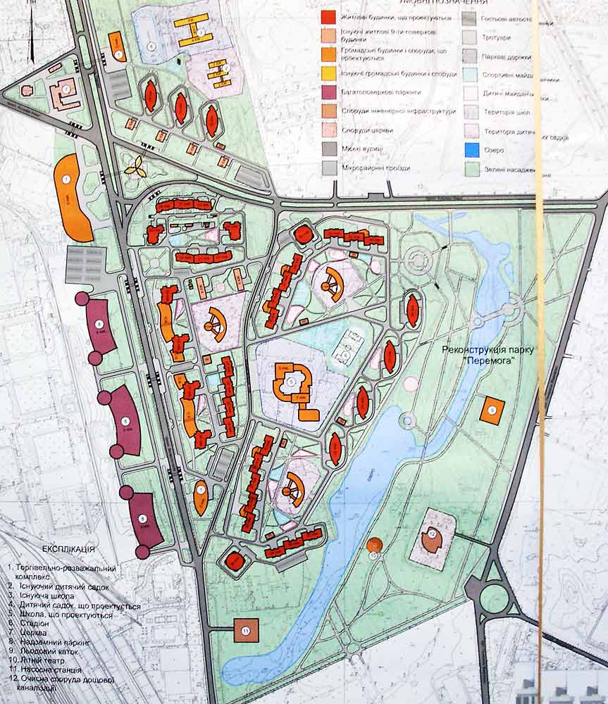
Предварительные проектные предложения строительства жилого комплекса со встроено – пристроенными помещениями. Соломенский район г. Киева. Победы проспект, 55/2.

Проектная организация: ВАТ “КиївЗНДІЕП”.
Заказчик: ТОВ “Компанія “ЕНЕРГОБУДЛІЗИНГ”.

Главный архитектор проекта: Хорхот Георгий Александрович , представил новый, переработанный согласно замечаниям Градсовета, вариант предпроектных предложений. По сравнению с предыдущим вариантом, значительно проработана концепция застройки всего района в целом. Увеличено количество жилых домов, предусмотрено строительство школы, детских дошкольных учреждений, зон отдыха, а так же спортивно – оздоровительного комплекса, на базе существующего стадиона.
Концепция развития квартала.
Общий вид.
Фасад в осях.
Концепция развития квартала.
Общий вид.
Фасад в осях.

Градостроительный макет.
Перспективное развитие квартала.
Фасды в осях.
Градостроительный макет.
Перспективное развитие квартала.
Фасды в осях.

План этажа.
Фасды в осях.
Генплан.
План этажа.
Фасды в осях.
Генплан.

Председательствовавший на Градсовете В. Присяжнюк, после рассмотрения и обсуждения членами совета данного вопроса, огласил следующее решение: утвердить новый вариант предпроектных предложений. Рекомендовать Министерству обороны, подготовить территорию будущего микрорайона к реконструкции. Применить данные предпроектные предложения в качестве основы будущего проекта застройки микрорайона.

Проект строительства учебно – жилого комплекса в квартале, образованном: Индустриальной ул., Борщаговской ул., Индустриальным пер. Соломенский район г. Киева.

Проектная организация: ТОВ “Діпромісто - Одеса”
Заказчик: НТУУ “Київський політехнічний інститут”.
ГАП: Рогова Светлана Петровна.
Рецензент: Лапоногов Сергей Иванович.

Рогова Светлана Петровна представила доработанный, с учетом замечаний и предложений градсовета, проект. Учебно – жилой комплекс расширен, предусмотрены соответствующие социальные, культурные и бытовые строения в составе: парикмахерская, библиотека, компьютерный клуб, студия изобразительного искусства. Проработаны вопросы связанные с транспортом: автостоянки и подъездные пути.

Во время обсуждения, предлагаемый вариант проекта вызвал ряд серьезных замечаний со стороны Градсовета.

Архитектор Виг считает представленный вариант проекта совершенно безграмотным, выполненным непрофессионально и следовательно неприемлемым.

Архитектор Ежов считает расположение высоток в композиции непродуманным, усложненным. По его мнению, композицию следует упростить, а ее основу – центральное здание, проектируемое полукругом, выполненное в столь привлекательной архитектурной форме, совершенно затертое и теряющееся в тени соседних зданий, следует освободить. Кроме того очень плохо воспринимается разная высотность всего комплекса.

Архитектурный макет.
Развёртка фасада по Борщаговской улице.
Общий вид.
Схема благоустройства территории.
Архитектурный макет.
Развёртка фасада по
Борщаговской улице.
Общий вид.
Схема благоустройства
территории.
Общий вид.
Схема опорного генплана.
Развёртка фасада по Индустриальной улице.
Общий вид.
Общий вид.
Схема опорного генплана.
Развёртка фасада по
Индустриальной улице.
Общий вид.
Градостроительный макет.
План паркинга.
Градостроительный макет.
План паркинга.

Председательствовавший на Градсовете В. Присяжнюк после рассмотрения и обсуждения проекта, сказал следующее: - Мы разгромили первый вариант этого проекта и теперь наблюдая в новом варианте повторяющиеся элементы предыдущей композиции понимаем, что выдержать все необходимые и приемлемые формы на этом участке действительно трудно, поэтому Градсовет предлагает доработать проект, придерживаясь в первую очередь градостроительных норм и представить его, после соответствующих доработок, секции Градсовета.

Архитектор Виг отметил: - обсуждаемый объект настолько серьезный и большой, что его следует рассматривать только на Градсовете. Предложение архитектора Вига было принято.

Проект реконструкции существующей застройки и строительства жилого дома со встроенными помещениями для офисов и социальной сферы, а так же подземным паркингом. Шевченковский район г. Киева. Хмельницкого Богдана ул., 2/37-Б.

Проектная организация: ТОВ “Торговий дім міжнародної спілки українських підприємців”
Заказчик: ТОВ “Торговий дім міжнародної спілки українських підприємців”
ГАП: Збаратский Олег Витальевич
Рецензент: Штрокаль Владимир Михайлович

Збаратский Олег Витальевич представил свой, доработанный в соответствии с замечаниями и предложениями Градсовета проект, которым предусмотрено строительство: жилого дома со встроенными помещениями для офисов, подземного паркинга, детской площадки и зеленой зоны отдыха. При этом, сносу подлежат установленные самовольно гаражи и два дома (двухэтажный и трехэтажный). Строительство предусмотрено на территории расположенной между памятником истории и архитектуры – Анатомическим театром и зданием станции Скорой помощи. С двух других сторон территория ограничена многоэтажными зданиями.

После представления проекта состоялось его, достаточно жесткое по форме, обсуждение. Участники Градсовета, сразу же обратили внимание на то, что приведенное в названии проекта слово «Реконструкция» не соответствует проекту, поскольку в нем речь идет о строительстве нового здания, а не о реконструкции существующих домов. Не соответствует истине так же и этажность строения, поскольку вместо заявленных проектом 10-ти этажей, на представленных чертежах здания, абсолютно четко просчитываются 11-12 этажей. Кроме того, новое строительство в исторической зоне связано с определенными трудностями, решение которых в данном случае еще не завершено.

Архитектор Виг: - Я думаю, что строительство в этом квартале не представляется возможным, поскольку новый дом насильно, с явными нарушениями санитарных норм, втискивается в существующую застройку квартала. В связи с этим вероятно следует отказаться от рассмотрения данного проекта.

Руслан Кухаренко: - Отказываться от предложения реконструировать этот квартал не стоит, а строительство нового дома нисколько не испортит существующую застройку. Единственное, на что необходимо обратить внимание – это на строгое исполнение градостроительных норм.

Архитектор Кривоглаз:- Не стоит бояться нового, однако в данном случае архитектура нового дома не совсем соответствует окружающей застройке. Именно на это следует обратить особое внимание.

Архитектор Скорик:- Не следует еще больше ужимать застройку кварталов в центральной части города. Это пространство следует не застраивать жилыми домами, а наоборот заполнять всем необходимым для нормальной жизнедеятельности человека.

Общий вид.
Фасад в осях.
Развёртка фасада по ул. Богдана Хмельницкого.
Архитектурный макет.
Общий вид.
Фасад в осях.
Развёртка фасада по
ул. Богдана Хмельницкого.
Архитектурный макет.
Архитектурный макет.
Архитектурный макет.
Перспектива с ул. Богдана Хмельницкого.
План этажа.
Архитектурный макет.
Архитектурный макет.
Перспектива с
ул. Богдана Хмельницкого.
План этажа.
Транспортно-пешеходная схема.
Схема генерального плана.
Транспортно-пешеходная
схема.
Схема генерального плана.

Председатель Градсовета В. Присяжнюк:- Рассматривая год тому назад предварительные проектные предложения строительства этого дома, мы сделали соответствующие замечания, которые были учтены проектантами. Строительство нового точечного объекта в этом квартале возможно, однако следует доработать проект следующим образом: понизить высоту цокольных этажей, а так же уменьшить общую этажность и длину здания. Необходимо так же согласовать намечающееся строительство с жителями окружающей застройки, выполнить их требования и произвести ремонт фасадов и подъездов существующих домов.


Предварительные проектные предложения строительства комплекса жилых домов со встроено - пристроенными помещениями социальной инфраструктуры. Днепровский район г. Киева. Пересечение Перова бульв. и Алишера Навои просп.

Проектная организация: ТОВ МП “УЦІММ – ПРЕС”
Заказчик: ГУ МВС Відділення капітального будівництва
ГАП: Кныш Валерий Иванович

Главный архитектор проекта - Кныш Валерий Иванович представил предпроектные предложения, после чего участниками совета было сделано несколько замечаний и высказано мнение о том, что если перенести линию электропередачи, территория проектируемой застройки предоставила бы проектантам совершенно новые возможности и они смогли бы сделать свой проект более интересным.

Градостроительный макет.
Градостроительный макет.
Градостроительный макет.
Экспликация.
Градостроительный макет.
Градостроительный макет.
Градостроительный макет.
Экспликация.

Общий вид.
Общий вид.
Общий вид.
Вид с верху.
Общий вид.
Общий вид.
Общий вид.
Вид с верху.

План типового этажа.
Схема генплана.
Фасасд.
План типового этажа.
Схема генплана.
Фасасд.

Председатель Градсовета В. Присяжнюк:- Мы должны быть готовы к тому, что интерес к этому району рано или поздно станет более активным. Проектные предложения можно принять с условием: необходимо доработать общую концепцию застройки района.

Корректирование проекта строительства жилого дома. Шевченковский район г. Киева. Нагорная ул., 18/16.

Проектная организация: ТОВ “Архітектурна студія “Домус”
Заказчик: НВП “Київський інститут автоматики”
ГАП: Н. Плотницкая
Докладчик: Жила Алексей Станиславович
Рецензент: Штрокаль Владимир Михайлович

Вопрос рассматривался уже несколько раз. Предыдущее рассмотрение состоялось в июле 2005 г.

Несмотря на то, что в повестке дня этот вопрос обозначен как «Корректирование проекта», ни о каком корректировании речь не идет. Основная проблема данного вопроса: противостояние жителей, окружающей участок строительства, застройки – строящемуся дому.

Вопрос не соответствует статусу Градсовета, который не уполномочен рассматривать и принимать решения по имущественным вопросам.

Противостояние сторон, на сегодняшний день, ни к чему не привело и следовательно сложилась скандальная ситуация разрешить которую возможно либо достигнув разумного компромисса между сторонами, либо в судебном порядке.

Генплан.
Развёртка фасада.
Общий вид.
Вид с верху.
Генплан.
Развёртка фасада.
Общий вид.
Вид с верху.

Председатель Градсовета В. Присяжнюк:- Во первых, все началось с небольшого нарушения. Проект в свое время не был утвержден. Я такую ситуацию не понимаю и по этому поводу могу заявить следующее: как только Главархитектура утвердит проект этого дома, я в свою очередь немедленно согласую данный проект.

Во вторых, необходимо привести в соответствие к новым нормам все проектные условия строительного участка.

В третьих, я вижу здесь еще один вариант решения существующей проблемы. В районе строящегося дома нет ни одной детской площадки и нет места для размещения личного автотранспорта. Возможно, кроме предоставления протестующей стороне, в качестве компенсации за их подлежащие сносу дома, новые комфортабельные квартиры в этом же новом доме или предоставления необходимых денежных сумм, для приобретения другого жилья, необходимо так же выкупить у частных лиц, которые противостоят строительству, их землю для дальнейшего использования ее под строительство вышеупомянутых объектов. В любом случае необходимо искать новые компромиссные решения этого скандального вопроса.


Предварительные проектные предложения строительства жилого дома. Печерский район г. Киева. Верхняя ул., 4.

Проектная организация: ЧП “Л. Арт”
Заказчик: ТОВ “Ріелтер Еліт”
ГАП: Максимов Виктор Ярославович

Максимов Виктор Ярославович, представил предпроектные предложения строительства жилого дома на улице Верхней № 4.

Платформа жилого дома.
Схема паркинга.
Фасад.
Платформа жилого дома.
Схема паркинга.
Фасад.

Фасад.
Общий вид.
Общий вид.
Фасад.
Общий вид.
Общий вид.
Общий вид.
Общий вид.
Общий вид.
Общий вид.
Общий вид.
Общий вид.

В связи с тем, что в данном районе предполагается разместить еще один строительный объект, главным архитектором второго проекта - Васягиным Виталием Анатольевичем , были представлены предпроектные предложения строительства офисно – жилого комплекса с подземным паркингом, по улице Струтинского. (Печерский район г. Киева).

Общий вид.
Общий вид.
Общий вид.
Общий вид.
Общий вид.
Общий вид.

Схема генплана.
Планы этажей.
План первого этажа.
Схема генплана.
Планы этажей.
План первого этажа.

Общий вид.
Общий вид.
Общий вид.
Общий вид.

Представленные материалы не дали возможности членам Градсовета получить полное представление о взаимодействии двух архитектурных объектов, расположенных по обе стороны проспекта Дружбы народов (район Печерского моста).

Архитектор Виг: - У меня есть предложение. Необходимо объединить эти два проекта в одну проводку, сделать макет и соответственно рассмотреть на следующих Градсоветах.

Председательствовавший на Градсовете В. Присяжнюк: - Полностью согласен с поступившим предложением. Эти два проекта необходимо рассматривать как общую концепцию застройки данного района.

По второму рассматриваемому проекту есть следующее замечание: необходимо провести добротные геологические исследования на запроектированном участке и только после полученных результатов приступать к разработке проектной документации.

На этом наша работа заканчивается. Следующее заседание состоится 11 января 2006 г. С НОВЫМ ГОДОМ ДРУЗЬЯ !