Заседание градостроительного совета Киевглавархитектуры 5 апреля 2006 года.
Предпроектные предложения строительства второго выхода станции метрополитена «Вокзальная» Святошинско-Броварской линии метрополитена по адресу: площадь Привокзальная (станция метро Вокзальная), Соломенский район.
Заказчик: Дирекция строительства метрополитена.
Проектная организация: ГППИ "Укрметротоннельпроект".
Главный архитектор проекта: Николай Алёшкин.
|
|
|
|
Общий вид проекта. |
Прилегающая территория. |
Вид со стороны платформ
пригородных поездов. |
Общая схема. |
|
|
|
|
План. |
План. |
Схема связи с метрополитеном. |
|
Станция «Вокзальная» построена ещё в 1960-е годы. Авторы получили задание разработать два варианта второго выхода, учитывая перспективу увеличения пассажиропотока в связи с появлением пересадочного узла Подольско-Воскресенской линии.
Объём двух вариантов одинаков, основное различие заключается в том, что первый вариант полностью подземного залегания, а второй имеет наземную часть. В результате обсуждения на техническом совете была получена рекомендация - разрабатывать подземный вариант.
В. Присяжнюк: Материала недостаточно. Необходимо провести все расчёты по объёмам перевозок. Предлагаю снять с обсуждения до подготовки обоснования. Разрабатывать только подземный вариант.
Предпроектные предложения строительства жилого комплекса с подземным паркингом по адресу: проспект Героев Сталинграда, 2, Оболонский район.
(Предыдущее рассмотрение: 21. 12. 05).
Заказчик: ЗАО «МЖК «Оболонь».
Проектная организация: ООО «Бюро инвестиционных проектов – проектный менеджмент».
Главный архитектор проекта: Татьяна Григорова.
Проектная организация «Бюро инвестиционных проектов – проектный менеджмент» (БИП-ПМ). |
 |
Григорова Татьяна Геннадиевна – главный архитектор ООО «Бюро инвестиционных проектов – проектный менеджмент» (БИП-ПМ) ... »
|
|
|
|
|
Градостроительный макет. |
Общий вид проекта
жилого комплекса. |
Общий вид проекта
жилого комплекса. |
Эскиз. |
|
|
|
|
Фасад жилого дома. |
Разрез. |
Схема генерального плана. |
Архитектор Осип Кривоглаз. |
Площадь участка 0.93га. Площадь застройки 2997.5 кв. м. Количество квартир 277. Количество этажей 23, 24.
Н. Жариков: Это ценнейшая территория. Хотелось здесь видеть нечто достойное. А это просто 3 дома – обычная застройка. Здесь нельзя строить жильё – это зона общественных интересов. Может быть, гостиница или развлекательный комплекс.
А. Карминский: Это только предложение – инвестора на эту территорию нет. Перспективная застройка (гараж и третий дом) к проекту отношения не имеет. А проект двух домов я предлагаю согласовать.
Я. Виг: Объёмно-пространственное решение не найдено. Надо ждать инвестора на прилегающую территорию.
В. Присяжнюк: Заказчик получил участок и здесь можно строить жильё. Один дом здесь сядет без всяких проблем. И всё будет соответствовать нормам. Предлагаю работать в соответствии с ёмкостью участка и нормативами. Подготовьте окончательное решение одного здания на этом участке.
Предпроектные предложения строительства спортивно-развлекательного комплекса «Вiтрила» на берегу залива Волковата реки Днепр в Оболонском районе.
Докладчик: Е. Лишанский.
|
|
|
Генплан. |
Общий вид проекта. |
План.
|
|
|
|
Фасад. |
План. |
Общий вид проекта. |
Мнение Совета по предпроектным предложениям необходимо для решения вопроса об отводе земли.
Территория (по генплану – общественного назначения) замыкает перспективу Московского проспекта. Площадка в настоящее время находится в запущенном состоянии. В откосе проходят серьёзные инженерные коммуникации, и заказчик готов к тому, что их надо будет переложить.
В процессе проектирования спортивно-оздоровительного комплекса появился и высотный акцент - здание, в котором смогут разместиться офисные помещения. Планируется организация внутренней улицы с основной торговой функцией. В банном комплексе с большим бассейном будут представлены бани всех народов мира, предусмотрены и гостиничные номера для отдыха и кафе. Развлекательная часть с парковыми аттракционами займёт 1,5 тысячи кв. м. Используя рельеф, паркинг разместится в нескольких уровнях.
В. Присяжнюк: Есть распоряжение киевской администрации о застройке этой территории на конкурсной основе. И сейчас разрабатывается концепция. Следует принять во внимание эту информацию и обратиться разработчикам в отдел экономики и инвестиций.
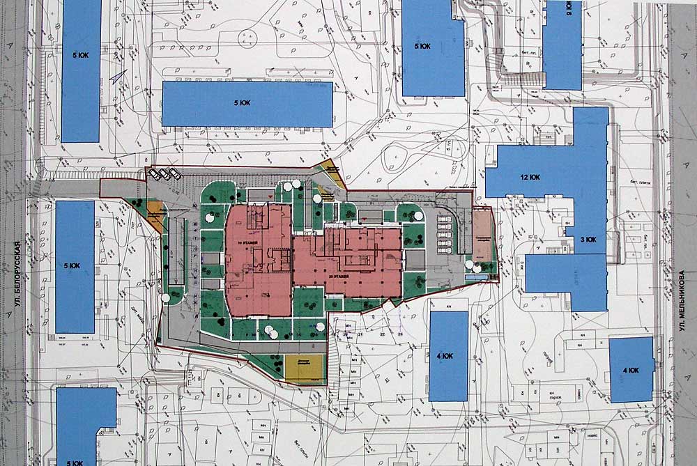
Проект строительства многоэтажного жилого здания с встроенно-пристроенными помещениями общественного назначения и подземным паркингом по адресу: улица Белорусская, 36а, Шевченковский район.
Заказчик: ООО «Гранит плюс».
Проектная организация: ООО «Бюро инвестиционных проектов – проектный менеджмент», ООО ТАМ «Мрия».
Главный архитектор проекта: Татьяна Григорова.
Проектная организация «Бюро инвестиционных проектов – проектный менеджмент» (БИП-ПМ). |
 |
Григорова Татьяна Геннадиевна – главный архитектор ООО «Бюро инвестиционных проектов – проектный менеджмент» (БИП-ПМ) ... »
|
|
|
|
|
Градостроительный макет. |
Встроенное изображение
жилого здания. |
Встроенное изображение
жилого здания. |
Общий вид проекта
жилого здания. |
|
|
|
|
Общий вид проекта
жилого здания. |
Экспликация сооружений. |
Схема генплана. |
Главный архитектор
Киева В.Присяжнюк. |
Площадь участка 0, 54 га, площадь застройки 1518, 2 кв. м. Количество этажей 19, 25. Количество квартир 194.
Рецензент С. Целовальник: Замечаний по зданию нет. Предлагаю сделать лёгкие навесы над террасами, чтобы избежать самодеятельности в будущем.
И. Шпара: Я бы не делал здесь высотную застройку.
Представительница общественности: Рядом находится 4-этажный жилой дом постройки 1940-го года. Выдержит ли он высотное строительство с двухуровневым подземным паркингом и достаточно ли здесь территории для нового строительства?
В. Присяжнюк: Ситуация понятна. Необходимо подготовить концепцию реконструкции квартала, провести техническое обследование и анализ состояния существующих зданий и обсудить эти материалы с общественностью – жителями квартала. Процесс покажет, какая здесь может быть высотность. Пока на макете понятно, что 16 этажей здесь может быть. Доработайте и посмотрим ещё раз.
Предпроектные предложения строительства многоэтажного жилого здания с объектами социальной инфраструктуры и подземным паркингом по адресу: улица Лисковская.
Докладчик: Лариса Скорик.
|
|
|
|
Общий вид проекта
жилого здания. |
Градостроительный макет. |
Генплан. |
Генплан. |
|
|
|
|
Градостроительный макет. |
Градостроительный макет. |
Планы квартир. |
Архитектор Лриса Скорик. |
Объект рассматривается повторно. Авторы учли замечания предыдущего совета. Понизили этажность на 2 –3 этажа и решили проблему с владельцами двух усадеб, которым будут предоставлены две квартиры по 120 кв. м. на первом этаже нового здания, с отдельным выходом на их приусадебные участки.
В. Присяжнюк: Мы рассмотрели предпроектные предложения и согласовываем их для дальнейшей разработки.
Проект строительства пристройки административного корпуса к существующему административно-производственному зданию по адресу: улица Фрунзе, 19-21, Подольский район.
Заказчик: ВАТ «Украинский научно-исследовательский институт авиационной технологии «УкрНИИАТ».
Проектная организация: ЧП «КОМАТЕК».
Главный архитектор проекта: Владимир Магдысюк.
|
|
|
|
Ситуационный план. |
Развёрка фасада здания. |
Развёрка фасада здания. |
Развёрка фасада здания.
|
|
|
|
|
Общий вид
административного корпуса. |
Общий вид
административного корпуса. |
Южный фасад. |
Градостроительный макет. |
|
|
|
|
План застройки квартала. |
Генеральный план. |
|
|
Первый вариант пристройки к существующему 9-этажному корпусу решался с учётом системы старых красных линий, которые сейчас отменены. Первое решение было пересмотрено и теперь предлагается новый вариант пристройки офисного назначения.
В. Присяжнюк: Согласовать при условии доработки архитектурного решения и доработки фасадов существующего здания. |