Заседание градостроительного совета Киевглавархитектуры 6 февраля 2008 года.
Градостроительное обоснование размещения строительства административно-офисного здания паркингом. Печерский район г. Киева. Площадь Леси Украинки, 1.
Заказчик: ОАО АК "Киевреконструкция"
Проектная организация: "ТАМ "А. Пашенько"
Главный архитектор проекта: Пашенько Андрей Васильевич
Докладчик: Пашенько Андрей Васильевич
Рецензент: Целовальник Сергей Анатольевич
Творческая архитектурная мастерская «А. Пашенько». |
 |
Архитектор Андрей Васильевич Пашенько родился 10 октября 1959 года в городе Киеве. В 1984 году окончил архитектурный факультет киевского инженерно – строительного института ... »
|
|
|
|
|
ТЭП. |
Генеральный план. |
Перспектива городской застройки. |
Архитектор Андрей
Пашенько. Проект
административного здания. |
|
|
|
|
Архитектор Андрей
Пашенько. Проект
административного здания. |
Архитектор Андрей
Пашенько. Проект
административного здания. |
Архитектор Андрей
Пашенько. Проект
административного здания. |
Архитектор Андрей
Пашенько. Проект
административного здания. |
|
|
|
|
Развёртка. |
Архитектор Андрей
Пашенько. Проект
административного здания. |
Архитектор Андрей
Пашенько. Проект
административного здания. |
Архитектор Андрей
Пашенько. Проект
административного здания. |
На участке, площадью 0,9га. запроектировано строительство 42-х этажного административного здания. Представлено несколько вариантов его архитектурного оформления. В подземном пространстве под комплексом разместится 4-х уровневый паркинг для 720 автомобилей.
Работа отправлена на доработку.
Проект строительства жилого комплекса с офисными помещениями, объектами социально-бытового назначения, банно-оздоровительным комплексом и подземным паркингом. Печерский район г. Киева. Ул. Лейпцигская, 13.
Заказчик: ООО "Мрія-плюс"
Проектная организация: ТАМ "Н. Демин"
Главный архитектор проекта: Демин Николай Мефодьевич
Докладчики: Демин Станислав Владимирович
Рецензент: Лишанский Евгений Ефимович
|
|
|
Пояснительная записка. |
Транспортная схема. |
Архитектор Николай Дёмин.
Проект жилого комплекса. |
|
|
|
Архитектор Николай Дёмин.
Проект жилого комплекса. |
Архитектор Николай Дёмин.
Проект жилого комплекса. |
Архитектор Николай Дёмин.
Проект жилого комплекса. |
Работа уже рассматривалась на заседании Градостроительного совета 23.01.2008.
22-х этажное здание устанавливается на стилобате, под которым размещается 2-х уровневый подземный паркинг для 18 автомобилей.
Общее количество квартир – 78.
В том числе:
1-комнатных – нет;
2-комнатных – 20;
3-комнатных – 33;
4-комнатных – 23;
5-комнатных – 2.
Работа принята с условием ее доработки в соответствии с замечаниями и предложениями Совета.
Эскизный проект строительства Всеукраинского центра охраны здоровья матери и ребенка на территории клинической больницы «Феофания». Голосеевский район г. Киева. Ул. Академика Заболотного, 21.
Заказчик: Государственное управление делами здравоохранения
Проектная организация: ООО «Будова-центр»
Главный архитектор проекта: Пидгирняк Владимир Петрович
Докладчик: Пидгирняк Владимир Петрович
Рецензент: Лелеко Олег Дмитриевич
Проектно - строительная фирма "БУДОВА - ЦЕНТР" |
 |
Архитектурное проектирование жилых, общественных зданий, объектов многофункционального назначеня ... »
Архитектор Владимир Пидгиряк и архитектор Квитана Пидгирняк. |
|
|
|
|
|
Архитектор Владимир Пидгирняк.
Проект оздоровительного центра. |
Генеральный план участка. |
ТЭП. |
Архитектор Владимир Пидгирняк.
Проект оздоровительного центра. |
Площадь участка – 10га.
Проектируемый трехэтажный комплекс зданий рассчитан на 250 мест. Ориентировочная стоимость реализации проекта – 600 млн. гривен.
Работа принята с условием ее доработки в соответствии с замечаниями и предложениями Совета.
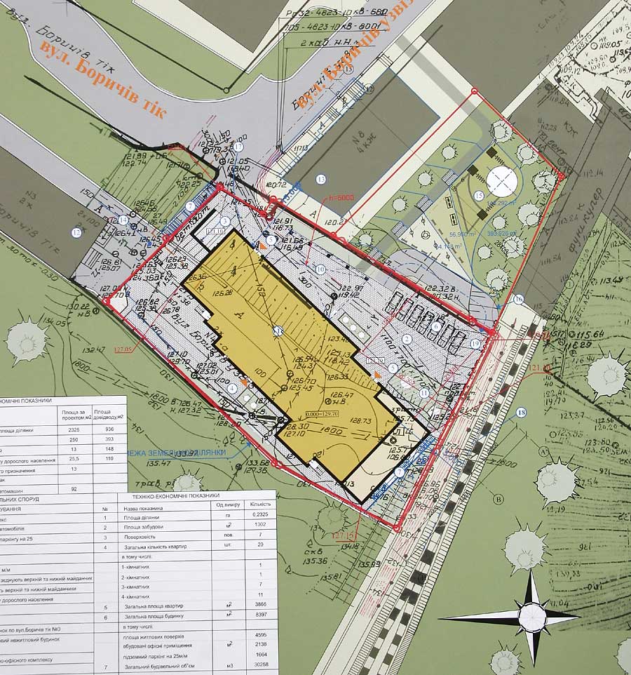
Проект строительства офисно-жилого комплекса. Подольский район г. Киева. Боричев спуск,4-А.
Заказчик: Гр. Бондарская Р.Е.
Проектная организация: ПП «Архитектурное бюро А. Коваль»
Главный архитектор проекта: Коваль Александр Владимирович
Докладчик: Коваль Александр Владимирович
Рецензент: Черний Константин Семенович
| Архитектурное бюро "АЛЕКСАНДР КОВАЛЬ" |
 |
Архитектор Коваль Александр Владимирович - начальник мастерской, главный архитектор проектов ... »
|
Градостроительное обоснование внесения изменений в градостроительную документацию для строительства офисно-жилого комплекса. Подольский район г. Киева. Боричев спуск,4-А.
Заказчик: Гр. Бондарская Р.Е.
Проектная организация: ПП «Архитектурное бюро А. Коваль»
Главный архитектор проекта: Коваль Александр Владимирович
Докладчик: Коваль Александр Владимирович
Рецензент: Черний Константин Семенович
|
|
|
|
ТЭП. |
Генеральный план участка. |
Градостроительный макет. |
Архитектор Александр Коваль.
Проект офисно-жилого комплекса. |
|
|
|
|
Архитектор Александр Коваль.
Проект офисно-жилого комплекса. |
Архитектор Александр Коваль.
Проект офисно-жилого комплекса. |
Архитектор Александр Коваль.
Проект офисно-жилого комплекса. |
Архитектор Александр Коваль.
Проект офисно-жилого комплекса. |
Проект рассматривается не в первый раз. Предыдущее обсуждение состоялось 30.01.2008г.
В новом представлении учтены замечания Совета, в связи с чем, в частности, высота здания была понижена до 7-ми этажей.
Площадь участка – 0,2325га.
Общее количество квартир – 20.
В том числе:
1-комнатных – 1;
2-комнатных – 1;
3-комнатных – 7;
4-комнатных – 11.
Подземный паркинг рассчитан на хранение 25 автомобилей.
Работа принята и рекомендована к дальнейшим стадиям проектирования с условием доработки в соответствии с замечаниями и предложениями Градостроительного совета.
|