Заседание градостроительного совета Киевглавархитектуры 5 марта 2008 года.
Градостроительное обоснование застройки территории, оганиченной улицами Салютной, Щербакова, Эстонской и Туполева, Шевченковский район города Киева.
Заказчик: Киевская овощная фабрика.
Проектная организация: ДП Институт «Киевгенплан», ОАО «Киевпроект» Дело № 112-а-08
ГАП: Мирошниченко Владимир Васильевич
Докладчик: Желтовский Владимир Васильевич
Рецензент: Черний Крнстантин Семёнович
|
|
|
Макет. |
Опорный план. |
ТЭП (600 кбт). |
Проект отправлен да доработку.
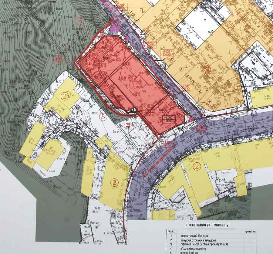
Градостроительное обоснование внесение изменений в градостроительную документацию и выяснение параметров строительства жилищно – офисного комплекса с подземным паркингом по адресу: улица Воскресенская, Днепровский район города Киева.
Заказчик: ООО «Мегаполисстрой»
Проектная организация: ДП Институт «Киевгенплан», ОАО «Киевпроект» Дело № 085-а-08
ГАП: Третяк Максим Эдуардович
Докладчик: Третяк Максим Эдуардович
Рецензент: Целовальник Сергей Анатольевич
| Проектно – строительная компания «ЗЕНАКО». |
 |
Архитектор Третяк Максим Эдуардович родился 1968 г. В 1993 г. закончил архитектурный факультет Киевского инженерно-строительного института. До 2003 года работал в России ... »
|
|
|
|
|
Общий вид проекта. |
Общий вид проекта. |
Общий вид проекта. |
ТЭП. |
Градостроительное обоснование утверждено.
Предпроектные предложения строительства жилищно – офисного комплекса с подземным паркингом по адресу: улица Воскресенская, Днепровский район города Киева.
Заказчик: ООО «Мегаполисстрой»
Проектная организация: ООО «Стрйпроект» Дело № 571-а-06
ГАП: Примак В. М.
Докладчик: Примак В. М.
Проект утверждён для дальнейшего проектирования.
Предпроектные предложения размещения административного здания по адресу: улиуа Институтская, 9, Печерский район города Киева.
Заказчик: Национальный банк Украины
Проектная организация: ООО «Киевпроект» Дело № 345-а-06
ГАП: Коваль Александр Владимирович
Докладчик: Коваль Александр Владимирович
| Архитектурное бюро "АЛЕКСАНДР КОВАЛЬ" |
 |
Архитектор Коваль Александр Владимирович - начальник мастерской, главный архитектор проектов ... »
|
|
|
|
|
Генпалн. |
Макет. |
Макет. |
Макет. |
Проект утверждён для дальнейшего проектирования.
Эскизный проект строительства отельного комплекса с пунктами общественного питания и паркингом по адресу: Андреевский спуск, 14-16, Подольский район города Киева.
Заказчик: ЧП «Маркон»
Проектная организация: ООО «Инжиниринг» Дело № 564-а-07
ГАП: Подольский Андрей Николаевич
Докладчик: Подольский Андрей Николаевич
Проект отправлен на доработку.
Проект строительства офисно-жилого дома с подземным паркингом по адресу: улица Щёрса, 39, Печерский район города Киева.
Заказчик: НПФ «Кругосвет»
Проектная организация: Печерская архитектурная мастерская Дело № 114-а-08
ГАП: Ухина Роза Ефимовна
Докладчик: Довгич Виктор Леонидович
Рецензент: Фильваров Генрих Осипович
Проект утверждён для дальнейшего проектирования.
|