Заседание градостроительного совета Киевглавархитектуры 26 декабря 2009 года.
Эскизный проект воссоздания колокольни монастыря по адресу: улица московская, 42, Печерский район города Киева
Заказчик: Киевский Свято-Введенский мужской монастырь УПЦ киевской епархии
Проектная организация: ООО «Т.И.А.М.»
ГАП: Юрченко Сергей Борисович
Докладчик: Юрченко Сергей Борисович
Рецензент: Судоргин Виктор Михайлович
|
|
|
|
Генплан. |
Общий вид проекта. |
Развёртка фасада. |
Развёртка фасада. |
Проект утверждён для дальнейшего проектирования.
Концептуальные предложения комплексного благоустройства Троицкой площади перед НСК «Олимпийский», Печерский район города Киева
Заказчик: ГУ капитального строительства КГГА
Проектная организация: ПТАБ «Ю. Серёгин»
ГАП: Серёгин Юрий Иванович
Докладчик: Серёгин Юрий Иванович
|
|
|
|
|
Генплан 1. |
Общий вид проекта 1. |
Генплан 2. |
Общий вид проекта 2. |
Схема эвакуации. |
|
|
|
|
|
ТЭП. |
|
|
|
|
Проект утверждён для дальнейшего проектирования.
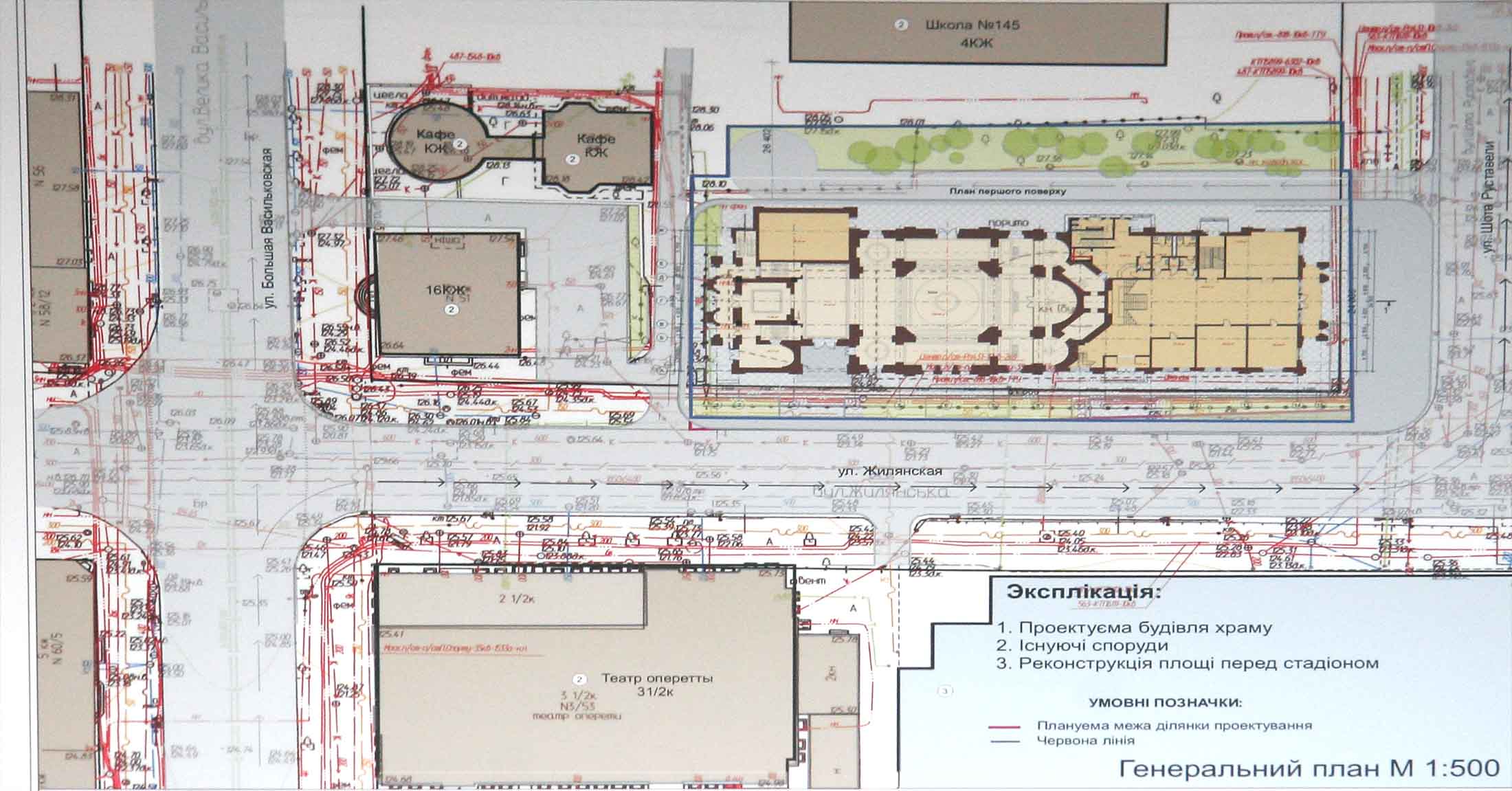
Предпроектные предложения строительства культурно-просветительного центра с воссозданием храма Святой Троицы, жилыми и хозяйственными помещениями по адресу: угол улицы Шота Руставели и улицы Жилянская, Печерский район города Киева
Заказчик: Религиозная община УПЦ
Проектная организация: ООО «АТМ плюс КМБ-1»
ГАП: Кругляк Ольга Александровна
Докладчик: Кругляк Ольга Александровна
|
|
|
|
Генплан. |
Развёртка фасада. |
Развёртка фасада. |
Развёртка фасада. |
Проект утверждён для дальнейшего проектирования.
Концепция (предпроектные предложения) реставрации застройки, реконструкции инженерных сетей и благоустройство территории улицы Петра Сагайтачного, Подольский район города Киева
Заказчик: Подольская РГА
Проектная организация: УДНДПИ «УкрДНИпректреставрация»
ГАП: Филипова Татьяна Владимировна
Докладчик: Филипова Татьяна Владимировна
|
|
|
|
|
Опорный план
исторического центра. |
Генеральный план
исторического центра. |
Модель застройки. |
Генеральный план
Андреевского спуска. |
Поперечный профиль
Андреевского спуска. |
|
|
|
|
|
Андреевский спуск.
Схема размещения
охранных объектов
по категориям. |
Андреевский спуск.
Схема определения технического
состояния объектов. |
Модель застройки. |
Модель застройки. |
Схема очерёдности
производства работ. |
|
|
|
|
|
Расчёт ориентировочной
стоимости предроектных
объектов. |
|
|
|
|
ТЭП по реконструкции Андреевского спуска (таблица 11 частей)
ТЭП по реконструкции Контрактовой площади (таблица 16 частей)
|
|
|
|
|
1
|
2 |
3 |
4 |
5 |
|
|
|
|
|
6
|
7 |
8 |
9 |
10 |
|
|
|
|
|
11
|
12 |
13 |
14 |
15 |
|
|
|
|
|
16 |
|
|
|
|
ТЭП по реконструкции улицы Петра Сагайдачного
|
|
|
|
|
|
Генплан 1. |
Генплан 2. |
Памятник Петру Могиле. |
Вариант застройки. |
Проект утверждён для дальнейшего проектирования.
Проект реконструкции корпуса научно-практического медицинского центра детской кардиологии и кардиохирургии (вторая очередь – пристройка лечебно-административного корпуса) по адресу: улица Вячеслава Черновола, 28/1, Шевченковский район города Киева
Заказчик: Исследовательский институт «Научно-практический медицинский центр детской кардиологии и кардиохирургии»
Проектная организация: ЗАО «Украинская строительная компания»
ГАП: Збаратский Олег Витальевич
Докладчик: Збаратский Олег Витальевич
Рецензент: Целовальник Сергей Анатольевич
|
|
|
|
Ситуационная схема. |
ТЭП. |
Общий вид проекта. |
Генплан. |
Проект утверждён для дальнейшего проектирования.
Предпроектные предложения реконструкции детской школы искусств №6 им. Жуковского Г.Л. по адресу: бульвар Верховного Совета, 15, Днепровский район города Киева
Заказчик: КП «Днипробудтехсервис»
Проектная организация: ДП ДПНДПВИ «НДИПРОЕКРЕКОНСТРУКЦИЯ»
ГАП: Гаврилюк Валерий Петрович
Докладчик: Ленючева Людмила Ивановна
|
|
|
Генплан. |
ТЭП. |
Общий вид проекта. |
Проект утверждён для дальнейшего проектирования.
Предпроектные предложения реконструкции аварийного корпуса школы №180 по адресу: бульвар Перова, 21, Днепровский район города Киева
Заказчик: КП «Днипробудтехсервис»
Проектная организация: ООО «Арт-проект ЛП»
ГАП: Антоненко Лидия Петровна
Докладчик: Антоненко Лидия Петровна
|
|
|
Генплан. |
Общий вид проекта. |
ТЭП. |
Проект утверждён для дальнейшего проектирования.
Предпроектные предложения реконструкции аварийного корпуса школы №11 по адресу: улица Алма-Атинская, 113, Днепровский район города Киева
Заказчик: КП «Днипробудтехсервис»
Проектная организация: ООО «Спик»
ГАП: Яровенко Андрей Михайлович
Докладчик: Яровенко Андрей Михайлович
|
|
|
Генплан. |
Общий вид проекта. |
ТЭП. |
Проект утверждён для дальнейшего проектирования.
Проект реконструкции аэродрома, реконструкции существующего терминала и строительства нового международного терминала по адресу: проспект Воздухофлотский, 79, Соломенский район города Киева
Заказчик: КП «Международный аэропорт «Киев» (Жуляны)»
Проектная организация: ООО «БИП -ПМ»
ГАП: Григорова Татьяна Генадиевна
Докладчик: Григорова Татьяна Геннадиевна
Рецензент: Целовальник Сергей Анатольевич
Проектная организация «Бюро инвестиционных проектов – проектный менеджмент» (БИП-ПМ). |
 |
Григорова Татьяна Геннадиевна – главный архитектор ООО «Бюро инвестиционных проектов – проектный менеджмент» (БИП-ПМ) ... »
|
|
|
|
|
|
Схема реконструкции дорог. |
Вариант застройки 1. |
Вариант застройки 2. |
Вариант застройки 1. |
Вариант застройки 2. |
|
|
|
|
|
Вариант 1. |
Вариант 2. |
Генплан нового
терминала. |
Общий вид проекта. |
Общий вид проекта. |
|
|
|
|
|
Общий вид проекта. |
Общий вид проекта. |
Общий вид проекта. |
|
|
Проект утверждён для дальнейшего проектирования.
Проект строительства офисно - отельного комплекса со встроенными и пристроенными помещениями и подземным паркингом по адресу: Набережное шоссе, 4, 6, 6а, 8, 8а
Заказчик: ООО «Будсервискомплект»
Проектная организация: ООО «Строительно-инвестиционаая сервисная компания»
ГАП: Григорова Татьяна Генадиевна
Докладчик: Юдин Александр Ильич
Рецензент: Юдин Александр Ильич
|
|
|
|
|
Общий вид проекта.
|
Общий вид проекта. |
Общий вид проекта. |
Разрез. |
ТЭП. |
|
|
|
|
|
Генплан. |
|
|
|
|
Проект отправлен на доработку.
|