Список архитекторов ... »
Архитектор Муляр Леонид Харитонович. Архитектор Муляр Леонид Харитонович

Проектная организация: ООО "Киевпроект".

Отправить  e-mail
Архитектор Леонид Харитонович Муляр – директор ООО «Киевпроект», кандидат архитектуры. Заслуженный архитектор Украины, лауреат премии Совета министров СССР, действительный член Украинской академии архитектуры и Академии строительства Украины, член Национального союза архитекторов Украины, член комитета по вопросам Государственных премий Украины в отрасли архитектуры, член Градостроительного совета при Главном архитекторе города Киева, профессор Киевского национального университета строительства и архитектуры.

 

Архитектор Леонид Муляр.
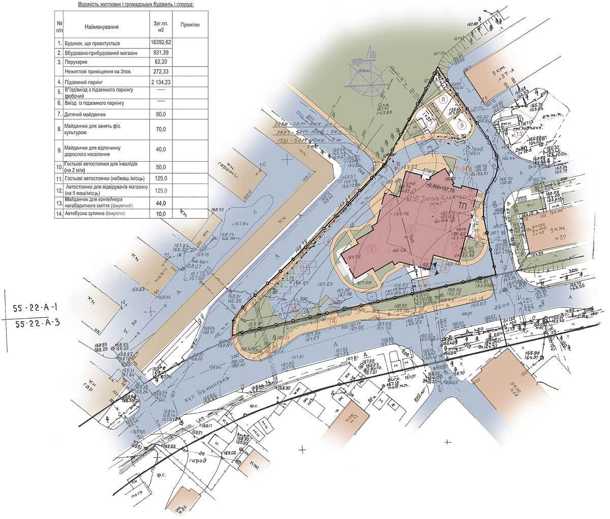
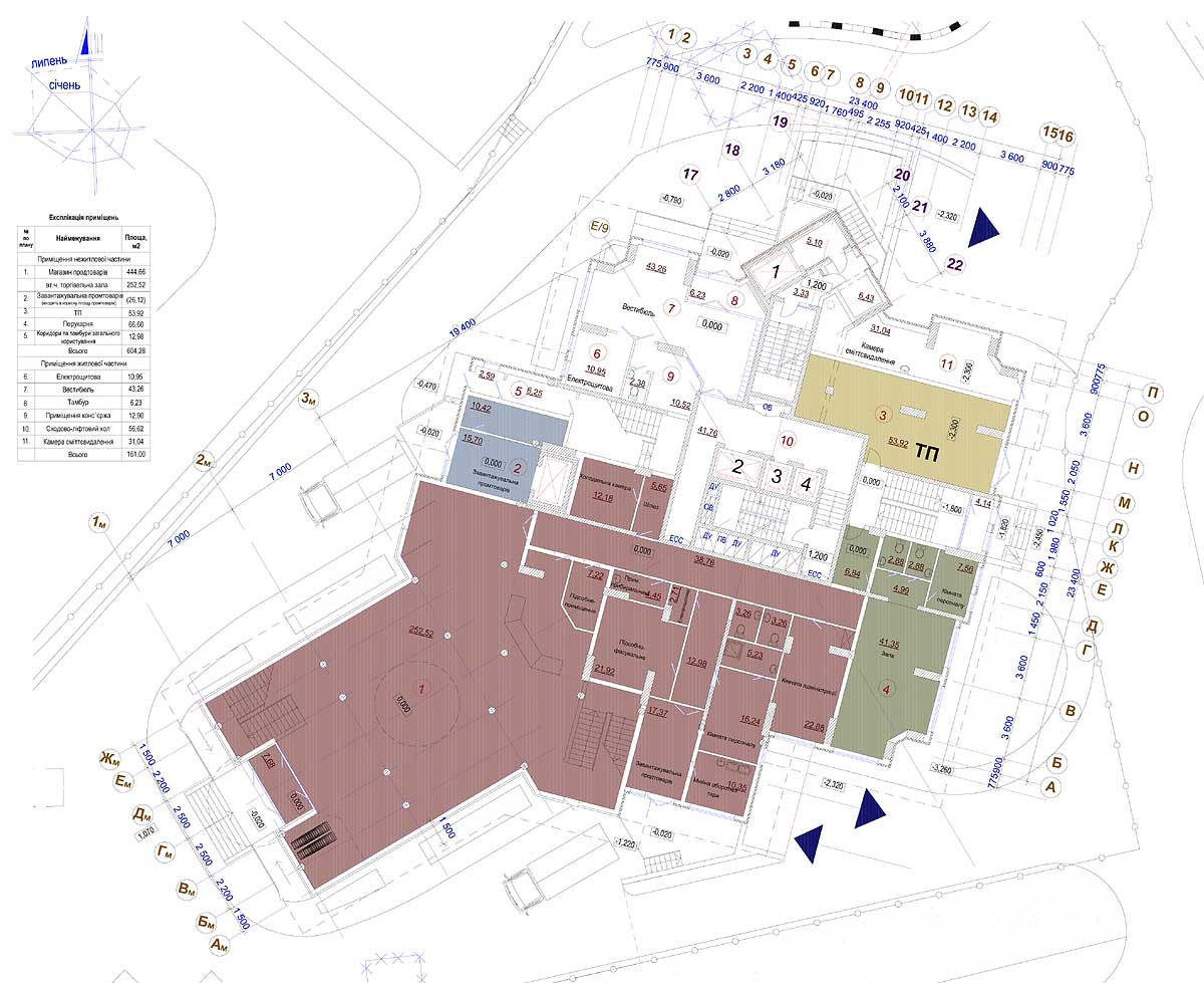
Проект жилого дома с объектами социального обслуживания
и подземным паркингом по улице Бакинской, 37-б в городе Киеве.


Архитектор Леонид Муляр. Проект жилого дома с объектами социального обслуживания и подземным паркингом по улице Бакинской, 37-б в городе Киеве.