Список архитекторов ... »
Архитектор Муляр Леонид Харитонович. Архитектор Муляр Леонид Харитонович

Проектная организация: ООО "Киевпроект".

Отправить  e-mail
Архитектор Леонид Харитонович Муляр – директор ООО «Киевпроект», кандидат архитектуры. Заслуженный архитектор Украины, лауреат премии Совета министров СССР, действительный член Украинской академии архитектуры и Академии строительства Украины, член Национального союза архитекторов Украины, член комитета по вопросам Государственных премий Украины в отрасли архитектуры, член Градостроительного совета при Главном архитекторе города Киева, профессор Киевского национального университета строительства и архитектуры.

 


Архитектор Леонид Муляр.
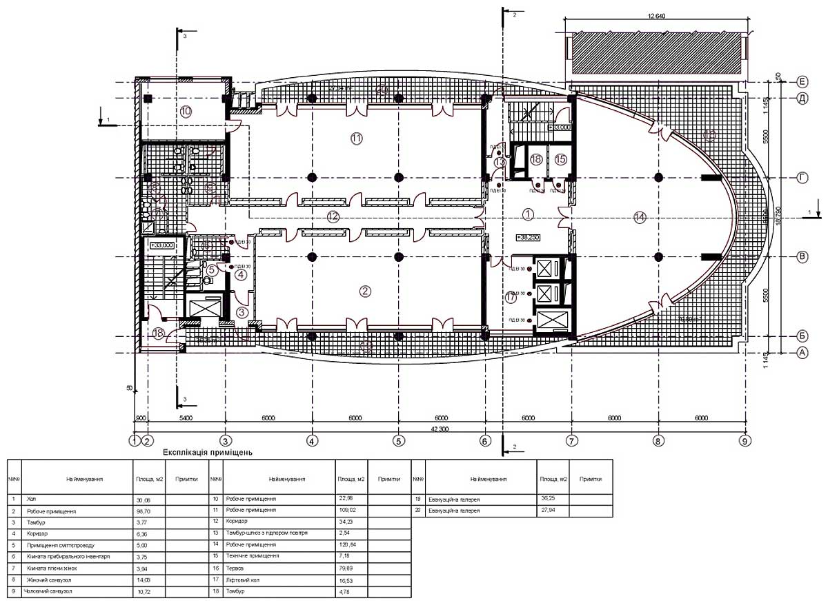
Проект административного здания по улице Щорса, 5 в городе Киеве.


Архитектор Леонид Муляр. Проект административного здания по улице Щорса, 5 в городе Киеве.