Заседание градостроительного совета Киевглавархитектуры 21 июня 2006 года.
Консультативное рассмотрение проекта пристройки к школе № 19. Подольский район г. Киева. Улица Межигорская, 16.
Заказчик: Подольская районная в г. Киеве государственная администрация.
Проектная организация: ТАМ "Ю. Лосицкий".
Главный архитектор проекта: Яровенко Андрей Михайлович.
Докладчик: Яровенко Андрей Михайлович.
|
|
|
|
Ситуационная схема. |
Генплан. |
Развёртка фасада (первый вариант). |
Развёртка фасада (первый вариант).
|
|
|
|
|
Развёртка фасада (первый вариант). |
Развёртка фасада. |
Развёртка фасада (второй вариант). |
Развёртка фасада.
|
|
|
|
|
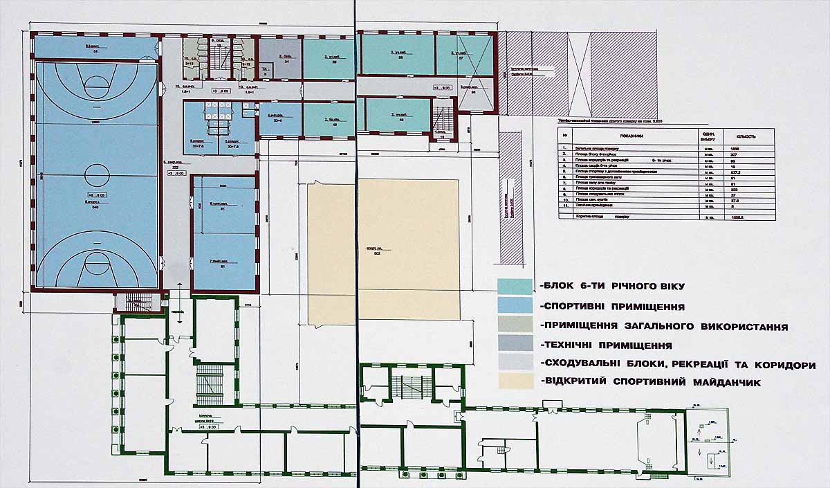
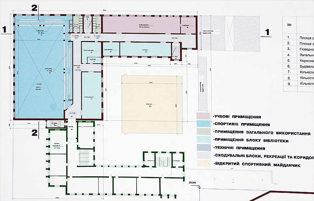
План первого этажа. |
План второго этажа. |
План третьего этажа. |
План четвёртого этажа. |
Реконструкцией предусмотрена пристройка к существующему зданию школы нового четырехэтажного объема. Площадь участка строительства – 3090м2. Площадь новой пристройки - 1978 м2.
При обсуждении проект получил ряд замечаний:
Пристраиваемый блок лишает школу открытой спортивной площадки, которая попадает в зону строительства;
Проектом не предусмотрено строительство плавательного бассейна, что в современных условиях – большой минус;
Архитектура здания, по мнению некоторых членов Совета, должна быть современной, поскольку возвращение в ХІХ столетие сегодня воспринимается как неестественное, хотя в случае встраивания нового объема в существующую застройку, стилизация вполне уместна. Наиболее привлекателен 1-й вариант фасада.
По представленному проекту принято решение:
Учитывая сложность проектирования в данном районе, рекомендовать проектантам проработать возможность увеличения территории школы за счет соседней застройки;
Продолжить работу над проектом с учетом замечаний и предложений Градостроительного совета;
При продолжении работы над проектом, рекомендовано предусмотреть строительство плавательного бассейна.
Проект реконструкции (с надстройкой) нежилого дома под административное здание. Шевченковский район г. Киева. Улица Большая Житомирская, 30-А.
Заказчик: ТОВ «Евразия Транзит Групп».
Проектная организация: ООО "Ве Енд Аш Груп".
Главный архитектор проекта: Казмиренко В.О.
Докладчик: Казмиренко В.О.
Рецензент: Пашенько Андрей Васильевич.
|
|
|
|
Встроенное изображение. |
Встроенное изображение. |
Встроенное изображение (вариант 1). |
Встроенное изображение (вариант 2).
|
|
|
|
|
Встроенное изображение. |
Эскиз. Вариант 1. |
Эскиз. Вариант 1. |
Эскиз. Вариант 2.
|
|
|
|
|
Эскиз. Вариант 2. |
Эскизный проект. |
Ситуационный план. |
Генплан. |
Проект рассматривался 17.11.05г.
Реконструкция здания, которое не является памятником архитектуры, предусматривает надстройку еще одного этажа с мансардой и пристройку к существующему объему со стороны двора. Парковку автомобилей предполагается расположить на арендуемой у Института микробиологии территории.
У членов Совета вызвала сомнение возможность фундамента и стен существующего строения выдержать дополнительную нагрузку предполагаемой надстройки, кроме того, согласно новым нормам, при строительстве и реконструкции зданий, необходимо предусматривать так же строительство паркингов или автостоянок, что в предлагаемом проекте полностью отсутствует. Завершение проектируемого строения явно перегружено и воспринимается как архитектурное излишество. Представленные материалы так же перегружены – информационно.
Проектантам рекомендуется рассмотреть вариант полного демонтажа существующего дома. На этом месте вполне возможно построить абсолютно новое современное, с подземным паркингом, здание.
Градостроительным советом принято решение:
В связи с тем, что на улице Большой Житомирской уже сложилась определенная архитектура, а предлагаемое к строительству здание плохо вписывается в нее, проект необходимо переработать с учетом замечаний и рекомендаций Совета.
Градостроительное обоснование определения параметров строительства жилого дома со встроенными нежилыми помещениями и подземным паркингом. Шевченковский район г. Киева. Улица Дмитриевская, 106.
Заказчик: АТЗТ «Топаз-Электроникс».
Проектная организация: МПП «Творческая мастерская «Висак».
Главный архитектор проекта: Муляр Леонид Харитонович.
Докладчик: Муляр Леонид Харитонович.
Проект рассматривался 07.07.05г. и 09.02.06г.
| Творческая архитектурная мастерская ООО «Киевпроект». |
 |
Архитектор Леонид Харитонович Муляр. Кандидат архитектуры. Заслуженный архитектор Украины, лауреат премии Совета министров СССР, действительный член Украинской академии архитектуры и Академии строительства Украины, член Национального союза архитекторов Украины ... »
|
|
|
|
|
Градостроительный макет. |
Градостроительный макет. |
Генеральный план. |
Эскизный прект жилого дома.
|
|
|
|
|
Эскизный прект жилого дома. |
Главный фасад жилого дома. |
Эскизный прект жилого дома. |
Эскизный прект жилого дома.
|
|
|
|
|
Встроенное изображение. |
Встроенное изображение. |
План типового этажа. |
Планы квартир. |
Строительство запроектировано на участке площадью 0,21га. Общее количество квартир – 79. Предусмотрен трехуровневый подземный паркинг, рассчитанный на 75 машин. В перспективе рассматривается реконструкция всей территории с постепенной заменой устаревших пятиэтажных домов - новыми и переселением в них жителей района.
При обсуждении проекта, членами Совета отмечена строго математическая сухость фасада, которую рекомендовано устранить. Поскольку проектируемое здание располагается в самой неблагоприятной для Киева ориентации, для предотвращения перегрева квартир необходимо предусмотреть систему противосолнечной защиты. В районе предполагаемого строительства наблюдается явно недостаточное количество школьных учебных учреждений. Проектантам следует учесть это при дальнейшем проектировании района.
Главный архитектор Киева – В. Присяжнюк огласил решение Градостроительного совета:
В связи с тем, что не исключен массовый протест жителей соседних домов против строительства нового здания в непосредственной близости от их жилья, проект необходимо выставить на общественное обсуждение. Кроме того, следует проработать возможность понижения этажности проектируемого здания. Проект принимается при условии его доработки в соответствии с замечаниями и рекомендациями Совета.
Проект строительства жилого многоэтажного дома со встроенными нежилыми помещениями и подземным паркингом. Днепровский и Деснянский районы г. Киева. Бульвар Перова, 10-12.
Заказчик: ГУ МВС Отдел капитального строительства.
Проектная организация: ТОВ МП «УЦІММ-ПРЕС».
Главный архитектор проекта: Кныш Валерий Иванович.
Докладчик: Кныш Валерий Иванович.
Рецензент: Репин Юрий Гаврилович.
|
|
|
|
Фасад жилого дома (развёртка). |
Эскизный прект жилого дома. |
Эскизный прект жилого дома. |
Эскизный прект жилого дома.
|
|
|
|
|
Эскизный прект жилого дома. |
Градостроительный макет. |
Градостроительный макет. |
Градостроительный макет.
|
|
|
|
|
Градостроительный макет. |
Перспектива застройки квартала. |
Перспектива застройки квартала. |
Генплан.
|
Проект (предыдущее рассмотрение состоялось на заседании секции 08.06.06г.), рассматривается в комплексе с проектом концепции зонирования и застройки территории в границах: бульвар Перова, просп. Алишера Навои, парк «Победы».
Решение застроить эту территорию, по мнению членов Совета, своевременно, однако, вряд ли проектантами принято правильное решение строить на проектируемом участке такой огромный дом. На этом месте гораздо симпатичней выглядели бы точечные объекты. Не исключена возможность и несколько иного проекта здания, например, вписанного в гибкие линии поворота - расположение более естественное для данного места и рельефа.
Проект согласован с условием его доработки в соответствии с замечаниями и рекомендациями Градостроительного совета, особенно в части архитектуры и с учетом перспективы реконструкции всего района.
Градостроительное обоснование определения параметров отдельного объекта градостроения – реконструкция административного здания с устройством мансардного этажа. Шевченковский район г. Киева. Улица Чапаева, 4-Г.
Заказчик: ПП «Инжиниринг».
Проектная организация: ООО "ТЕЛЛУРИС".
Главный архитектор проекта: Ткачук Павел Валериевич.
Докладчик: Ткачук Павел Валерьевич.
Рецензент: Тваровский Виктор Михайлович.
|
|
|
Фрагмент генплана. |
Существующее положение. |
Развёртка фасада здания.
|
|
|
|
Фрагмент плана 1925 года. |
Эскизный проект. |
Эскизный проект. |
Проект рассматривался 18.05.06г. и 13.04.06г.
Здание не входит в реестр памятников, но является неотъемлемой частью сложившейся застройки квартала. На заседание Совета представлены два варианта архитектуры фасада и три варианта мансарды.
Проект получил незначительные замечания и принят для дальнейшей разработки с учетом рекомендации Градостроительного совета |